- •Оглавление
- •Введение.
- •1.Выбор методов производства работ
- •1.1.Исходные данные
- •1.2. Характеристика условий строительства
- •1.3. Обоснование нормы продолжительности строительства
- •1.4. Выбор организационно-технологических схем
- •1.4.1. Организационно-технологическая схема на производство земляных работ
- •1.4.2.Организационно-технологическая схема на устройство буронабивных свай
- •1.4.3.Организационно-технологическая схема на бетонирование ростверка
- •1.4.4. Монтаж плит перекрытий технического этажа
- •1.4.5. Монтаж междуэтажных плит перекрытий.
- •1.4.6 Каменные работы
- •1.4.8 Устройство кровли
- •1.5 Подсчет объемов работ
- •10) Устройство кровли
- •1.5.1 Ведомость объёмов основных работ
- •Ведомость объёмов основных монтажных и специальных строительно- монтажных работ
- •1.5.2 Калькуляция затрат труда
- •1.6.Обоснование потребности в машинах и ресурсах
- •2. Календарный план
- •Расчет продолжительности работ представлен в табл. 3
- •2.1. Движение рабочей силы.
- •3. Стройгенплан.
- •3.1. Размещение крана.
- •3.2. Размещение складских площадок.
- •3.3.Прокладка инженерных коммуникаций.
- •3.4.Размещение инвентарных зданий и сооружений.
- •3.5. Расположение мест закрепления разбивочных осей зданий и сооружений.
- •3.6. Решение вопросов техники безопасности.
- •3.7. Подсчёт объёмов работ.
- •3.8. Обоснование количества и номенклатуры временных зданий и сооружений.
- •3.9. Обоснование размеров оснащения площадок для складов.
- •3.9.1 Размещение складских площадок.
- •3.10. Указание о прокладке временных автомобильных дорог.
- •3.11. Указание о методах осуществления контроля качества сооружений.
- •4 Мероприятия по охране труда.
- •4.1.Перечень условий сохранения природной среды.
- •4.2 Технико-экономические показатели.
1.4.3.Организационно-технологическая схема на бетонирование ростверка
Бетонирование ростверка запроектировано выполнять по схеме «кран- бадья». Работу предусмотрено выполнять по захваткам. Размер захватки определяется запасом опалубки. Сначала на захватке выполняют арматурные работы, затем монтируют опалубку площадью 100 м2 и после освидетельствовании и приемки захватки приступают к бетонированию.
Непосредственно перед основными работами следует очистить мусор из зоны бетонирования.
Бетонирование рассчитано выполнять с четырех стоянок. В захватку бетонную смесь запроектировано подавать бадьей вместимостью 0,8 м3 с помощью стрелового крана КС-45719-1. Бетонную смесь уплотняют электровибратором ИВ- 112. После набора бетоном прочности на захватке, производятся демонтаж и перестановка опалубки на следующую захватку.
Схема бетонирования ростверка представлена на рисунках 12,13.
Рисунок 12. Схема бетонирования ростверка
Рисунок 13. Разрез 1-1
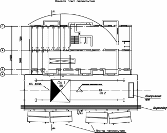
1.4.4. Монтаж плит перекрытий технического этажа
Монтаж плит перекрытия запроектировано выполнять стреловым краном КС-45719-1. Плиты перекрытий подают и складируют в монтажной зоне крана, в этой же зоне размещают боек для приема раствора.
До начала выполнения работ геодезисты делают нивелировку горизонта.
Монтажники подготавливают плиты к подъему, очищают конструкции и закладные детали, проверяют размеры, производят строповку плит.
Первую плиту в пролете монтируют с подмостей, последующие с ранее смонтированных плит. Плиты раскладывают на заранее уложенный слой раствора толщиной в 30 мм. Опорная площадка плиты перекрытия на несущую стену должна быть не менее 120 мм.
После монтажа плит заделывают швы между плитами выполняют взаимную анкеровку и в кирпичную кладку.
Схема установки плит перекрытия технического этажа представлена на рисунках 14, 15.
Рисунок 14. Схема установки плит перекрытия технического этажа
Рисунок
15. Разрез 1-1
1.4.5. Монтаж междуэтажных плит перекрытий.
Монтаж междуэтажных плит перекрытия запроектировано выполнять башенным краном КБ 160.2. Плиты перекрытий подают и складируют в монтажной зоне крана, предусмотренной генпланом. Монтажники обеспечивают подачу конструкций в зону монтажа и их раскладку у места подъема. В монтажной зоне размещают боек для приема раствора.
До начала выполнения работ геодезисты делают нивелировку горизонта.
Монтажники подготавливают плиты к подъему, очищают конструкции и закладные детали, проверяют размеры, производят строповку плит.
Первую плиту в пролете монтируют с подмостей, последующие с ранее смонтированных плит. Плиты раскладывают на заранее уложенный слой раствора толщиной в 30 мм. Опорная площадка плиты перекрытия на несущую стену должна быть не менее 120 мм.
После монтажа плит заделывают швы между плитами на глубину их опирания и выполняют взаимную анкеровку и кирпичную кладку. Сварку стыков производить электродами Э-42, высота шва 6 мм.
Схема установки междуэтажных плит перекрытия представлена на рисунках 16,17.
Рисунок 16. Схема установки междуэтажных плит перекрытий
Рисунок 17. Разрез 1-1
