- •2. Разработка стройгенплана 8
- •3. Технико-экономические показатели проекта (тэп) 22
- •4. Список использованной литературы 23 Исходные данные
- •Продолжительность выполняемых работ при возведении жилого 12-ти этажного четырехсекционного крупнопанельного дома.
- •Введение
- •1. Разработка календарного плана строительства комплекса (кпск)
- •1.1.Титульный список
- •Титульный список строительства жилого комплекса из четырех 12-ти этажных четырехсекционных крупнопанельных домов.
- •1.2. Структура комплексного потока
- •Структура комплексного потока
- •1.3 Расчет объемов работ, выполняемых спецпотоками.
- •Расчет выполняемых объемов работ спецпотоками в составе объектного потока по возведению зданий основного назначения
- •2. Разработка стройгенплана
- •2.1.Размещение монтажных кранов и подъемников.
- •2.1.1 Поперечная привязка подкрановых путей башенного крана
- •2.1.2 Продольная привязка подкрановых путей башенного крана
- •2.1.3 Определение опасных зон крана (схемы и расчёты)
- •Монтажная зона.
- •Рабочая зона крана.
- •Зона перемещения груза.
- •Зона рассеивания груза.
- •Опасная зона работы крана.
- •Опасная зона подкрановых путей.
- •2.1.4 Расположение и опасные зоны подъемников (схема и расчеты)
- •2.2. Расчет объемов строительства временных административно-бытовых зданий
- •Расчет площадей временных административно-бытовых зданий
- •2.3 Определение сметной стоимости смр жилого комплекса.
- •2.4 Расчет площадей складских помещений
- •2.5 Решение по устройству временных автодорог.
- •2.6 Расчет потребности в электрических нагрузках
- •2.7 Расчет необходимого количества прожекторов для освещения строительной площадки и зоны производства работ
- •2.8 Расчет потребности во временном водоснабжении
- •3. Технико-экономические показатели проекта (тэп)
- •4. Список использованной литературы
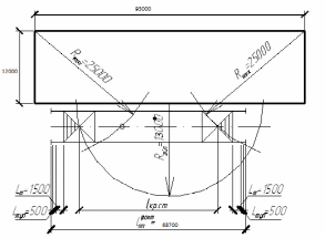
2.1.2 Продольная привязка подкрановых путей башенного крана
Рис. 2 Схема продольной привязки подкрановых путей |
При продольной привязке кранов устанавливаются:
-крайние стоянки,
-длина (и ограждение) путей,
-места тупиков и контрольного груза.
Определение крайних стоянок с учетом монтажа максимально и минимально удаленных элементов.
Длина подкрановых путей:
,
где
-
расстояние между крайними стоянками
крана, определяемое по схеме, м;
Lторм. - величина тормозного пути крана, принимаемая не менее 1,5м;
Lтуп. - расстояние от конца рельса до тупиков, равное 0,5м;
Рассчитываем необходимое количество звеньев подкрановых путей при условии, что длина полузвена lп/зв= 6,25 м.
Принимаем 6 полузвеньев, при этом фактическая длина подкрановых путей составляет:
Выполняем корректировку тормозного пути по формуле:
Окончательно принимаем длину подкранового пути 68,7м.
2.1.3 Определение опасных зон крана (схемы и расчёты)
При размещении строительного крана устанавливаем опасные для людей зоны, в пределах которых постоянно действуют или потенциально могут действовать опасные производственные факторы.
В целях создания условий безопасного производства работ, действующие нормативы предусматривают различные зоны:
- монтажная зона;
- рабочая зона крана;
- зона перемещения груза;
- зона рассеивания груза;
- опасная зона работы крана;
- опасная зона подкрановых путей.
Монтажная зона.
Монтажной зоной называют пространство, где возможно падение груза при установке и закреплении элементов. Согласно СНиП 12-03-2001, эта зона является потенциально опасной. Она равна контуру здания плюс 7м, так как высота здания 50м. На стройгенплане зону обозначаем пунктирной линией, а на местности - хорошо видимыми предупредительными знаками. В этой зоне можно размещать только монтажный механизм, включая место, ограниченное ограждением подкрановых путей. Складировать материалы здесь нельзя. Для прохода людей в здание назначаем определенные места, обозначенные на стройгенплане с фасада здания, противоположного установке крана. Места проходов к зданию через монтажную зону снабжаем навесами.
Рис. 3. Монтажная зона; I – монтажная зона
Рабочая зона крана.
Рабочей зоной крана называют пространство, находящееся в пределах линии, описываемой крюком крана. Определяется для башенных кранов путем нанесения на план из крайних стоянок полуокружностей радиусом, соответствующим максимально необходимому для работы вылету стрелы и соединения их прямыми утолщенными линиями.
|
Зона перемещения груза.
Зоной перемещения груза называют пространство, находящееся в пределах возможного перемещения груза, подвешенного на крюке крана. Зоны определяются расстоянием по горизонтали от границы рабочей зоны (зоны обслуживания) крана до возможного места падения груза в процессе его перемещения. Для башенных кранов граница зоны определяется суммой максимального рабочего вылета стрелы и ширины зоны, принимаемой равной половине длины самого длинного перемещаемого груза. В данном проекте за самый длинный перемещаемый груз принимаем многопустотную плиту перекрытия длиной 6м. Соответственно ширина зоны перемещения равна 3м.
Зону перемещения груза обычно отдельно на плане не выделяют - она служит составляющей при расчете границ опасной зоны работы крана, которая суммирует все входящие в ее контур зоны.
|
