- •Практическое занятие №1
- •1.Компоновка конструктивной схемы каркаса здания.
- •1.1.Составление эскиза плана колонн
- •1.2.Выбор схемы связей между колоннами
- •1.3.Разработка схемы связей по шатру
- •1.4.Разработка схемы фахверка
- •1.5.Компоновка рамы цеха
- •2.Расчет поперечной рамы здания
- •2.1.Установка расчётной схемы рамы
- •2.2.Сбор нагрузок на раму
- •2.4.Составление таблицы усилий в стойках рамы и выделение расчётных усилий по характерным сечениям
- •3.Расчёт и конструирование колонны.
- •3.1.Установление расчётной длины подкрановой и надкрановой частей колонны в плоскости и из плоскости рамы.
- •3.2.Подбор сечения нижней части колонны.
- •3.3Расчёт ветвей колонны в плоскости действия момента
- •3.4Расчёт и конструирование узла сопряжения верхней и нижней части колонны
- •4.Расчёт и конструирование стропильной фермы.
- •4.1.Сбор нагрузки на ферму
- •4.2.Определение расчётных усилий в стержнях фермы, расчётные длины стержней
- •4.3Подбор сечений стержней фермы
- •4.4Расчёт узлов фермы
- •4.5Расчёт узлов сопряжения колонны с ригелем
- •Литература
Практическое занятие №1
1.Компоновка конструктивной схемы каркаса здания.
1.1.Составление эскиза плана колонн
Размещение колонн в плане принимается с учётом конструктивных и технологических факторов. Согласно заданию к курсовому проекту пролет здания составляет 24 м, длина – 108 м. Шаг поперечных рам – 12 м. Ввиду небольших продольных и поперечных размеров здания нет необходимости в его разбивке на температурные блоки.
Число пролетов в
поперечном направлении:
шт.
Соответственно число колонн 9+1=10 шт.
Эскиз плана колонн здания приведён на рис.1.
1.2.Выбор схемы связей между колоннами
Система связей между колоннами обеспечивает геометрическую неизменяемость каркаса и его несущую способность в продольном направлении. Ввиду небольшой длины здания, согласно требованиям, необходимо установить вертикальную связь в одной панели в середине здания. При этом выдерживаются требуемые по табл.11.2 [1] предельные размеры между вертикальными связями.
Связи назначаем крестовые. Помимо этого крайние колонны по торцам здания соединяем двумя гибкими связями.
Расположение связей показано на рис.2.
1.3.Разработка схемы связей по шатру
Связи между фермами обеспечивают устойчивость сжатых элементов ригеля, перераспределение местных нагрузок. В зданиях с мостовыми кранами необходимо обеспечить горизонтальную жесткость каркаса поперек и вдоль здания. Поэтому необходима установка системы связей по верхнему и по нижнему поясу ферм ( мостовые краны по заданию имеют большую 10 т грузоподъемность).
Для обеспечения жесткости нужно использовать вертикальные связи в виде ферм, которые устанавливаются между фермами по их торцам.
Рис. Вертикальная связь
Схема системы связей показана на рис.4
1.4.Разработка схемы фахверка
Фахверком называют систему конструктивных элементов, служащих для поддержания стенового ограждения и восприятия ветровой нагрузки. Между колоннами здания устанавливаются стойки, на которые монтируют ригели. К ригелям крепятся стеновые панели.
Схема фахверка показана на рис.5
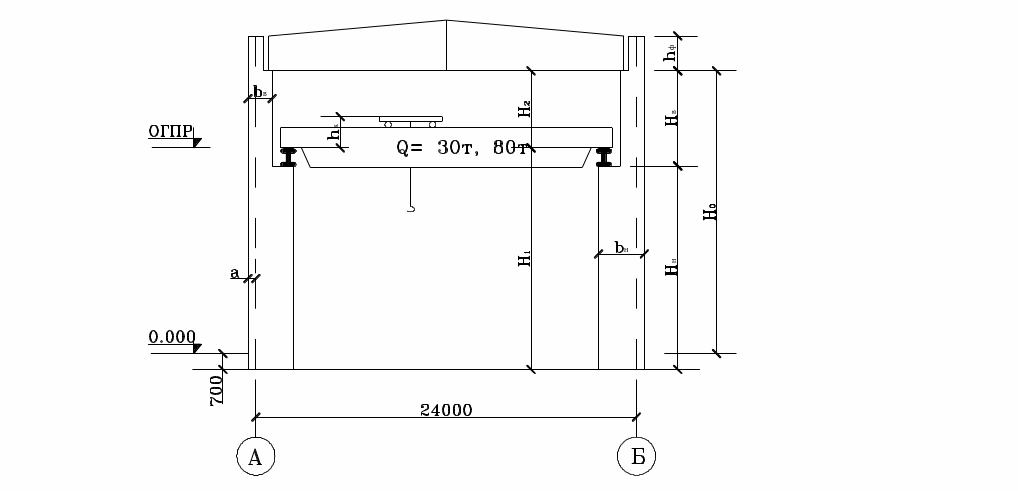
1.5.Компоновка рамы цеха
Вертикальные габариты здания зависят от технических условий производства и определяются расстояниями от уровня ноль до головки подкранового рельса и расстоянием от головки подкранового рельса до низа несущих конструкций покрытия.
Расстояние от уровня пола до головки подкранового рельса H1:
где hк – расстояние от головки подкранового рельса до верхней точки тележки крана, hк =2750 мм (для 30 т), hк =3700 мм (для 80 т); f – прогиб конструкции ферм, f = 200 мм (для пролета 24 м).
Для расчета принимаем hк =3700 мм для большей типизации элементов пролетов.
Полученное значение необходимо округлить до 0.2 м. Принимаем H1 = 4.0 м.
Высота цеха от уровня пола до стропильных ферм:
Рис.5 Компоновка рамы цеха.
Значение H0 > 10.8 м, поэтому оно должно быть кратно 1.8 м. Принимаем H0 = 19.8 м, H1 = 15.8 м.
Высота верхней части колонны:
где hпб
– высота подкрановой балки,
;
hp
– высота
рельса, hp
= 0.15 м.
Принимаем Hв = 6 м.
Высота нижней части колонны:
Привязку колонн принимаем 250 мм.
hф = 2250 мм (для пролета 24 м).
Рис.6 Узел опирания мостового крана на колонну
Ширина верхней части колонны bв = 500 мм. При назначении ширины нижней части необходимо предусмотреть проход для ремонта и обслуживания подкрановых путей.
где
hпр
– ширина
прохода, hпр
= 450 мм (с учетом устройства ограждения).
Принимаем l1= 1.25 м (должно быть кратным 250 мм).
Т.к. bн > 1 м, то колонну принимаем сквозного сечения.
