- •2.1. Аппаратура и оборудование
- •2.1.1. Компьютеризированные станции гти
- •2.1.2.Общее описание станций гти
- •2.1.3. Аппаратура и оборудование для геологических исследований (геологическая станция)
- •2.1.4. Оборудование (датчики) для автоматического измерения параметров (технологическая станция Разрез-2)
- •Технические характеристики датчика уровня:
- •2.1.5. Аппаратура и оборудование для газового анализа бурового раствора, керна и шлама
- •2.1.6. Оборудование общего назначения
- •2.2. Методика полевых работ
- •2.2.1. Метод проведения гти
- •2.2.2. Работа технологов станции гти
- •2.2.3.Система сбора геолого-технологической информации
- •Структура системы:
- •Глава 3. Обработка и интерпретация материалов гти
- •3.1. Методические приемы обработки материалов и интерпретационные модели
- •3.2. Станция контроля цементажа скц-мс
Техника и методика полевых РАБОТ СТАНЦИИ ГТИ
2.1. Аппаратура и оборудование
2.1.1. Компьютеризированные станции гти
Проводимая дипломником работа была написана в полевых условиях на компьютеризированных станциях ГТИ. Эти станции предназначены для реализации обязательного и дополнительного комплексов исследований. Состав комплексов ГТИ, перечень подлежащих выполнению работ, количество и перечень измеряемых параметров оговариваются Заказчиком при заключении контракта.
Граничные значения технических характеристик аппаратуры и оборудования станций ГТИ отражают достигнутый к настоящему времени отечественный и зарубежный технический уровень. Соответствие этим характеристикам обеспечивает наряду с другими факторами решение поставленных перед геолого-технологическими исследованиями задач.
В случае возникновения в ходе проведения ГТИ требований, обусловленных изменением круга решаемых задач или особенностями конкретных геолого-технических условий проводки скважины, возможно применение других, соответствующих им технических средств. Условия проведения работ, комплекс решаемых задач при этом являются предметом соглашения между Заказчиком и Производителем.
В этой главе будет рассмотрено общее описание геологической и технологической станций. Станция контроля цементирования будет рассмотрена в подглаве 3.2., как предмет специальных исследований дипломника.
2.1.2.Общее описание станций гти
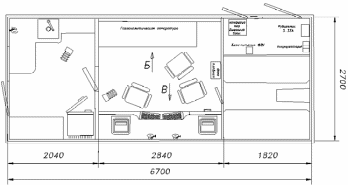
Компьютеризированные станции ГТИ представляет собой информационно-измерительную и аналитическую систему, предназначенную для непрерывного получения геолого-технологической информации на всех этапах строительства скважины. Схематический вид станции приведен на рис. 3,4,5,6.
Рис.3 Внешний вид станции
Рис. 4 Общий вид сверху
Рис. 5 Общий вид сбоку А
Рис. 6 Общий вид сбоку Б
Источниками информации при реализации ГТИ являются:
• геологические материалы, переданные Заказчиком;
• образцы горных пород (шлам, керн);
• пробы бурового раствора;
• циркулирующий буровой раствор;
• технологические параметры процесса проводки скважины;
• характеристики и состояние элементов бурового оборудования.
В процессе проведения ГТИ выполняется следующие виды работ, измерений и исследований:
• эпизодический отбор, подготовка и анализ образцов горных пород шлама (керна - по отдельному заказу);
• эпизодический отбор и анализ проб бурового раствора;
• непрерывное измерение параметров бурового раствора устанавливаемыми в циркуляционной системе соответствующими датчиками;
• извлечение из части циркулирующего бурового раствора углеводородных и не углеводородных газов путем непрерывной принудительной дегазации;
• подача извлеченной ГВС на непрерывный и эпизодический газовые анализы;
• непрерывный анализ ГВС на суммарное содержание УВ газов, а также на содержание метана и тяжелых углеводородов (С2 - С6), а по отдельному заказу - на содержание сероводорода, водорода, кислорода, углекислого газа, паров воды и т. п.;
• циклический (с периодом не более 3-х минут) покомпонентный газовый анализ на метан, этан, пропан, бутан, изобутан, пентан, изопентан с помощью хроматографа;
• циклический (с периодом 20 - 40 секунд) покомпонентный газовый анализ на С1 - С6 и не углеводородные газы (азот, кислород, углекислый газ, сероводород, водород, пары воды, гелий, аргон) с помощью масс-спектрометра по отдельному заказу;
• автоматическое измерение технологических параметров процесса бурения устанавливаемыми на буровом оборудовании соответствующими датчиками;
• автоматическая регистрация параметров при цементировании скважин;
• автоматическая регистрация результатов измерений и обработка информации с помощью компьютеров;
• визуализация получаемой информации на мониторах компьютеров в станции ГТИ, на пульте бурильщика, на компьютерах бурового мастера и супервайзера;
• интерпретация полученной технологической и геолого-геохимической информации;
• представление информации Заказчику на согласованных типах носителей, включая бумажный.
Для выполнения перечисленных измерений и исследований станции ГТИ комплектуются соответствующим оборудованием и аппаратурой.
