- •Дисциплина «Технология бурения».
- •1. Конструктивные отличия бурильных труб типа нк, п и д16т.
- •2. Напряжения, возникающие в бурильной колонне; привести общие формулы. Конструктивные особенности труб лбтвк, в и вн.
- •3. Методика проектирования бурильной колонны (с приведением основных расчетных формул на прочность).
- •4. Способы бурения скважины, их преимущества и недостатки. Коэффициент передачи мощности на забой скважины и кпд способа бурения.
- •5. Как влияют на величину механической скорости проходки режимные параметры? Влияние дифференциального давления на забой при этом.
- •6. Источники вибраций бурильного инструмента и понятие о его колебаниях с повышенными амплитудами. Методы борьбы с такими колебаниями.
- •7. Виды режимов бурения и методы их проектирования. Как проектируется частота вращения долота.
- •8.Проектирование режима бурения аналитическим методом. Подробней изложить методы расчета осевой нагрузки на забой скважины и частоты вращения долота.
- •9. Методы проектирования осевой нагрузки на долото и задаваемый по индикатору веса при разных способах бурения.
- •10. Изложить принципы проектирования расхода (подачи) пром. Жидкости; расчет технологически необходимого расхода.
- •11. Конструктивные отличия турбобуров зтсш1 и а7пз. Имитационные характеристики их турбин.
- •12. Устройство взд и их технологическая характеристика (модель).
- •13. Устройство двигателя типа твдм. Технологическая характеристика турбобура 3тсш1.
- •14. Расчет вращающего момента сопротивления на валу гзд.
- •15. Методика выбора способа бурения; ограничения величин параметров режима бурурения при разных способах.
- •16. Взаимосвязь между режимными параметрами при разных способах бурения. Влияние величины расхода промывочной жидкости на выходные характеристики взд и турбобура.
- •17. Как реализуется гидравлическая мощность буровых насосов (по элементам затрат) в процессе бурения скважины. Пути увеличения кпд способа бурения.
- •18. Методика выбора модели турбобура (типа гзд).
- •19. Расчет технологически необходимого давления в промывочном узле долота и диаметра насадок долота.
- •20. Какие параметры в технологии углубления скважины рассчитывают или определяют с привлечением частоты осевых зубцовых вибраций долота? Принцип действия амортизатора Длину убт можно определить как
- •21. Методы получения информации из бурящихся скважин. Приборы контроля параметров режима бурения. Принципы управления работой долота при углублении скважин.
- •22.Методика проектирования бурильной колонны (без приведения расчетных формул на устойчивость колонны).
Дисциплина «Технология бурения».
1. Конструктивные отличия бурильных труб типа нк, п и д16т.
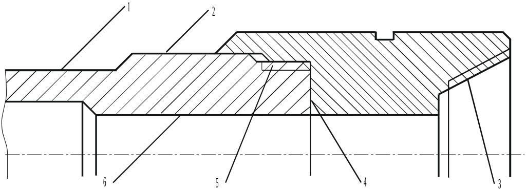
Для повышения прочности труб в резьбовых соединениях разработаны трубы НК с высадкой на их концах внутрь и наружу. На рисунке показаны конструктивные особенности трубы ВК. Мелкая трубная и замковая резьбы трапецеидальные типа ТТ с углом профиля в 300; резьбы удлинены по сравнению с резьбами труб 1,2 типа, конический поясок 2 снимает часть нагрузки с резьбового соединения и уплотняет его; упор 4 предотвращает довинчивание резьбы 5. Такое резьбовое соединение, хотя и упрочненное, остается слабым звеном в трубе.
Трубы бурильные с приваренными замками (ТБПВ). У таких труб отсутствует мелкая трубная резьба. На концах труб делается наружное утолщение под сварку. На одном конце замка имеется замковая резьба, а на другом – толстостенный хвостовик под сварку с трубной заготовкой. Сварка производится соосно для указанных деталей труб электроконтактным способом или трением. Длина труб П в среднем составляет 12,3 и 12,7 м с допуском до 0,9 м.
Конструкция трубы ТБВК
1 - тело трубы с высадкой;
2 - конический уплотнительный поясок;
3 - муфта замка;
4 - упор замка в торец трубы;
5 -мелкая трубная резьба;
6 - высадка трубы
внутрь.
2. Напряжения, возникающие в бурильной колонне; привести общие формулы. Конструктивные особенности труб лбтвк, в и вн.
Трубы типа "В" и "Н" выпускаются длиной 6,8 и 11,5; при этом короткие трубы соединяются муфтой. Толщина стенок труб (т) составляет 7-11 мм. На наружных концах труб на утолщенной части (высадке) нарезается трубная мелкая резьба треугольного профиля с углом при вершине витка 600 Наиболее часто повреждения у этих труб случаются в резьбовом соединении трубы с замком. При вращении колонны происходит доворачивание замка на тело трубы, что создает дополнительные напряжения в трубе.
Для облегчения колонны разработано несколько конструкций ЛБТ, трубы ЛБТВК имеют такую же конструкцию, как трубы ВК, т.е. мелкая трубная и замковая резьбы трапецеидальные типа ТТ с углом профиля в 300; резьбы удлинены по сравнению с резьбами труб 1,2 типа, конический поясок снимает часть нагрузки с резьбового соединения и уплотняет его; упор предотвращает довинчивание резьбы. Такое резьбовое соединение, хотя и упрочненное, остается слабым звеном в трубе.
