- •Введение
- •1 Технологическая схема абсорбционной установки
- •2 Конструкция абсорбера
- •Конструкция абсорбера
- •Выбор конструкционного материала
- •Технологический расчёт абсорбера
- •3.1 Цель расчёта
- •3.2 Исходные данные
- •3.3 Материальный баланс
- •Тепловой баланс
- •Средняя движущая сила
- •Скорость газа и диаметр абсорбера
- •Высота абсорбера
- •3.9 Гидравлическое сопротивление
- •3.10 Расчет штуцеров
- •Подбор вспомогательного оборудования
- •4.1Цель раздела
- •4.2Расширитель
- •Список литературы
АННОТАЦИЯ
Проект .посвящен разработке и расчету абсорбера выделения из воздушной смеси водой диоксида углерода
В проекте приводится описание технологической схемы абсорбционной установки, в которой используется абсорбер, описание конструкции абсорбера и выбор конструкционных материалов, технологический расчет абсорбера и выбор вспомогательного оборудования.
Курсовой проект состоит из пояснительной записки и графической части.
Пояснительная записка содержит 25 листов машинописного текста, 1 таблицу и 1 рисунок, библиография 8 наименований.
Графическая часть проекта представлена на 2 листах формата А1.
С
одержание
АННОТАЦИЯ 1
2.1 Конструкция абсорбера 8
2.2 Выбор конструкционного материала 12
Введение
Абсорбцией называется процесс поглощения газов или паров из газовых или парогазовых смесей жидкими поглотителями (абсорбентами).
При физической абсорбции поглощаемый компонент (абсорбтив) не взаимодействует химически с абсорбентом. Если же абсорбтив образует с абсорбентом химическое соединение, то процесс называется хемосорбцией.
Физическая абсорбция в большинстве случаев обратима. На этом свойстве абсорбционных процессов основано выделение поглощенного газа из растворов - десорбция.
Сочетание абсорбции и десорбции позволяет многократно применять поглотитель и выделять поглощенный компонент в чистом виде. Во многих случаях проводить десорбцию не обязательно, если абсорбент и абсорбтив представляют собой дешевые или бросовые продукты.
В промышленности абсорбция используется главным образом для извлечения ценных компонентов из газовых смесей или для очистки этих смесей от вредных примесей.
Абсорбционные процессы широко распространены в химической и нефтехимической промышленности и являются основной технологической стадией ряда важнейших производств. Например, абсорбция SO3 в производстве серной кислоты, абсорбция НС1 в Производстве соляной кислоты, абсорбция окислов азота в производстве азотной кислоты, абсорбция различных углеводородов из газов переработки нефти. Кроме этого, абсорбционные процессы являются основными процессами санитарной очистки газов.
Задачей курсового проекта является разработка и проектирование абсорбера для выделения из воздушной смеси водой СО2.
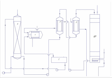
1 Технологическая схема абсорбционной установки
Схема абсорбционной установки приведена на рисунке 1.1
А-абсорбер,
Х-холодильник, КР- колонна ректификационная,
Р-рекуператор, П-подогреватель,
Е-емкость
Рисунок 1.1- Принципиальная схема абсорбционной установки
Технологическая схема включает основной аппарат, абсорбер А, который предназначен для поглощения газов из газовых смесей жидкими поглотителями. Газовая смесь не содержит твердых включений и подается на абсорбцию тремя компрессорами K1-3. Перед этапом абсорбции СO2 водой производится охлаждение газовой смеси, происходящее в кожухотрубчатом теплообменнике T2. В нем происходит охлаждение газовой смеси от 80 °С до температуры абсорбции 30 °С. В качестве второго теплоносителя используется захоложенная вода.
Затем газовая смесь поступает на абсорбцию в насадочный абсорбер А с насадкой – керамические кольца Рашига 50501. При выборе размеров насадки следует учитывать, что чем больше размеры ее элемента, тем выше допустимая скорость газа (и соответственно – производительность аппарата) и ниже его гидравлическое сопротивление. Общая стоимость абсорбера с насадкой из элементов больших размеров будет ниже за счет уменьшения диаметра аппарата. При выборе насадки необходимо учитывать допустимую потерю давления в насадке. При работе под повышенным давлением потеря его существенного значения не имеет и в данном случае предпочтительнее беспорядочно загруженные насадки, в частности, кольца внавал.
В качестве поглотителя используется вода, которая поступает в установку при температуре 20 С. Охлаждение поглотителя до температуры абсорбции происходит в кожухотрубчатом теплообменнике Т. В качестве второго теплоносителя используется захоложенная вода с начальной температурой 6 °С. Поглотитель (абсорбционная вода) подается в абсорбционную колонну при помощи центробежного многоступенчатого секционного насоса из емкости Е. В колонне осуществляется противоточное взаимодействие газа и жидкости. Газ после абсорбции выходит из колонны. Абсорбент стекает через гидрозатвор в Рекуператор Р , откуда насосом Н2 направляется на регенерацию в ректификационную колонну КР после предварительного подогрева в подогревателе П. Перед подачей в абсорбер абсорбент, пройдя теплообменник – рекуператор Р дополнительно охлаждается. Регенерации поглотителя отводится существенная роль, так как, во - первых, она необходима в подавляющем большинстве случаев, во – вторых, сочетание абсорбции с десорбцией позволяет многократно применять поглотитель и выделить поглощенный компонент в чистом виде, что повышает экономию ресурсов. Так поглощаемый газ СО2 (тяжелопоглощаемый), то процесс следует вести при повышенном давлении и низкой температуре. Этим обусловлены условия протекания процесса – р = 1,6МПа и t = 30 °С .
В качестве поглотителя отдадим предпочтение воде по следующим причинам:
1) жидкость должна хорошо растворять поглощаемый газ, так как это свойство позволяет сократить количество циркулирующего поглотителя;
2) поглотитель должен быть дешевым, относительно нелетучим, стабильным, невязким;
3) предпочтительны негорючие поглотители.
В связи с тем, что исходная газовая смесь и поглотитель подаются при температуре выше, чем в абсорбере, то их следует охладить. Для этой цели в химической промышленности обычно применяют холодильники. В качестве охлаждающих агентов для охлаждения до обыкновенных температур (10 – 30 °С) обычно применяют в основном воздух и воду.
Насадочные колонны имеют ряд преимуществ по сравнению с тарельчатыми:
1) насадочные колонны преимущественно используются при работе под вакуумом, так как гидравлическое сопротивление насадочной колонны может быть меньше, чем тарельчатой;
2) насадочные колонны предпочтительнее для пенящихся жидкостей;
3) для коррозионных сред предпочтительнее насадочные колонны, обычно более дешевые и простые;
4) задержка жидкости, как правило, меньше в насадочной колонне;
5) тарельчатые колонны предпочтительнее при выпадении твердого осадка, который нужно периодически удалять из колонны;
6) тарельчатые колонны более пригодны для процессов, сопровождающихся колебаниями температуры относительно окружающей среды, так как периодическое расширение и сжатие корпуса колонны при таких условиях может разрушить насадку;
7) в тарельчатых колоннах обычно может поддерживаться более высокие скорости, если длина пути жидкости на тарелке не превышает 1 м.
8) при прочих равных условиях насадочные колонны имеют преимущество перед тарельчатыми, если диаметр колонны менее 0,6м.
