«Санкт-Петербургский государственный университет телекоммуникаций
им. проф. М. А. Бонч-Бруевича»
Кафедра защищенных систем связи
Курсовой проект
по дисциплине «Инженерно-технические методы защиты объектов»
на тему «Разработка комплексной системы безопасности жилого помещения»
Выполнили: студенты группы ИКТЗ-33
Подмарьков П.А.
Кобзев С.А.
Проверил:
Ст. преп. Прудников С.В.
Оглавление
Введение 3
Цель 3
Описание объекта. 3
1. Системы контролирующие придомовую территорию. 5
1.1 СКУД 5
1.2 Видеонаблюдение 7
2. Системы контролирующие дом 8
2.1 Проектирование противопожарной системы и сигнализации 8
2.2 Охранная система 9
Выводы 12
Перечень основных регламентирующих документов: 13
Приложение 1 14
Введение Далеко не секрет, что в последнее время, а, если точнее, то последние 10 лет, возможно, под влиянием западных картин, городским жителям начал надоедать смог, стоящий в областных столицах, и появилась тенденция переселения из душных и тесных городов загород на свежий воздух в собственный, отдельно стоящий, дом. Несомненно, от такой перемены места жительства, а, особенно, если до города рукой подать, одни плюсы: чистый воздух, никаких соседей, начинающих делать ремонт ни свет, ни заря, обычно в единственный выходной, да и просто свой клочок земли, на котором можно соорудить любую постройку, которую только душа пожелает.
Но, как и в любой бочке меда есть и ложка дёгтя, если в городе о вашей безопасности худо-бедно заботились местные власти или домоуправление, устанавливавшее домофоны и камеры наблюдения, то тут защищаться от злоумышленников приходится своими силами. Поэтому, рано или поздно, либо сам владелец задумывается о том, чтобы оснастить своё убежище охранными средствами, либо происшествие, связанное со злоумышленниками подталкивает жителей коттеджных поселков применять охранные средства на собственные дома.
В основном, жителей загородных домов интересует не столько надежная и максимальная защита, а охранная система, подходящая им по бюджету. Естественно, они в корне отличаются от множества групп датчиков и извещателей, используемых на больших промышленных или торговых объектов, но в тоже время, чем меньше различных электронных устройств, тем надежнее вся система.
Так что же необходимо современному жителю среднестатистического загородного дома? В основном – это системы, обеспечивающие контроль за проникновениями через входные двери и большие окна, и, конечно, же система пожарной сигнализации, так как большинство современных коттеджей обладают системой индивидуального отопления или просто камином.
В данной работе мы примерим на себе роль жителя коттеджного поселка и постараемся грамотно построить эти системы, придерживаясь основных правил и как можно
экономичнее.
Цель
Разработать систему технической защиты над объектом, внедрить систему видеонаблюдения, систему контроля управления доступом и охранно-пожарную систему сигнализации в жилом помещении для обеспечения безопасности его жителей и их имущества от несанкционированного доступа, пожара.
Описание объекта
Для разработки нашей системы мы выбрали среднестатистический одноэтажный загородный дом, отопление в котором производится газовым котлом. Также на земельном участке, помимо дома находятся объекты, которые необходимо защитить от действий злоумышленников, такие как место для стоянки автомобилей и различного рода хозяйственные постройки.
Системы контролирующие придомовую территорию.
Для круглосуточного наблюдения за лестничной площадкой и контролем входа установим систему видеонаблюдения и СКУД.
Система контроля и управления доступом
Система контроля и управления доступом используется для предотвращения несанкционированного проникновения на объект.
В
качестве контролера доступа установим
видеодомофон. Видеодомофоны-панели
повышают безопасность квартиры, офиса
или загородного жилья. Эти устройства
ограничивают доступ посторонних лиц в
подъезды и дома. А кроме того, владелец
современного видеодомофона получает
информацию о тех, кто приходил во время
его отсутствия, потому что в памяти
сохраняются фотографии всех посетителей.
Наш
комплект СКУД состоит из: видеодомофона,
вызывных панелей, панели сопряжения
домофона.
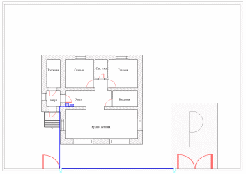
Рис.
1 - Схема
размещения оборудования системы контроля
и управления доступом.
Оборудование для СКУД:
Таблица 1. Смета для СКУД
Название |
Описание |
Количество (шт.) |
Цена за шт. (руб) |
Общая стоимость (руб.) |
CDV-35U цветной видеодомофон Commax |
3,5", TFT LCD,PAL/NTSC,без трубки (Hands Free), накладное крепление, подключение 2-х вызывных блоков, 2-x мониторов и 2-х трубок DP-4VHP, вызов и связь "трубка-монитор", AC 110-240В |
1 |
9 172
|
9 172 |
Источник бесперебойного питания IPPON Back Comfo Pro 600 |
Предназначен для защиты персональных компьютеров, рабочих станций и телекоммуникационного оборудования от основных неполадок с электропитанием: скачков и исчезновения напряжения в сети, радиочастотных помех и высоковольтных выбросов. |
1 |
5 300 |
5 300 |
Блок сопряжения MC-XL |
Блок сопряжения видеодомофона COMMAX с аудио домофоном MC-XL. Модуль сопряжения с подъездным домофоном для черно-белых и цветных видео-домофонов. На один канал монитора видео-домофона блок сопряжения MC-XL позволяет подключить линию аудио-домофона, одну дополнительную камеру, одну вызывную панель видео-домофона. |
1 |
1 500
|
1 500 |
DVC-411Bl вызывная панель DVC |
Температура эксплуатации (-30 +50) |
2 |
1 849
|
3 698 |
Итого: 19 870 рублей |
||||
Видеонаблюдение
Для наблюдением в реальном времени, а так же для просмотра архива записанных данных установим во дворе 4 IP камеры с поддержкой технологии Power over Ethernet (PoE), которая позволяет использовать единый кабель, как для передачи данных, так и для подачи электропитания. Для хранения записей с видеокамеры будем использовать IP видеоригестратор. Изображение в реальном времени будет выводиться на монитор подключенный к видеоригестратору при помощи кабеля HDMI.
Рис. 2 – Схема размещения оборудования системы видеонаблюдения.
Оборудование для системы видеонаблюдения:
Таблица 2. Смета для системы видеонаблюдения:
Название |
Описание |
Количество (шт.) |
Цена за шт. (Руб.) |
Общая стоимость (Руб.) |
IP видеорегистратор BS1208 |
Цифровой 8-канальный IP-видеорегистратор для IP камер. Скорость отображения и записи до 200 к/с Поддержка камер с разрешением до 1920х1080 Формат кодирования H.264 Подключение HDMI-монитора Возможность установки до 2 жестких дисков SATA Предустановленная ОС Linux Сетевой интерфейс 10/100 Мбит/c Блок питания 12 В 5 А (DC) в комплекте |
1 |
11 700 |
11 700 |
Продолжение таблицы 2
IP камера B1710RV |
1.3 Мп КМОП-сенсор Exmor с прогрессивным сканированием Лучшая цветопередача, высокая чувствительность и отличная детализация Варифокальный объектив с авторегулировкой диафрагмы Уличное исполнение, от -45 до +50°C, IP66 2 варианта организации питания, в том числе по технологии PoE ИК-подсветка с дальностью работы до 20 м Режим день/ночь и электромеханический ИК-фильтр Расширенный динамический диапазон с цифровой обработкой сигнала (DWDR) Цифровая система шумоподавления (2D/3DNR) Двойное кодирование видеопотока в форматах Н.264 и MJPEG Запись изображений на карту памяти microSDHC Наблюдение и настройка при помощи стандартного веб-браузера |
4 |
9 900 |
41700 |
Источник бесперебойного питания IPPON Back Comfo Pro 600 |
Предназначен для защиты персональных компьютеров, рабочих станций и телекоммуникационного оборудования от основных неполадок с электропитанием: скачков и исчезновения напряжения в сети, радиочастотных помех и высоковольтных выбросов. |
1 |
5 300 |
5 300 |
Сетевой коммутатор с поддержкой PoE XVI SWP1082 |
SWP1082 - коммутатор Ethernet с 9-ю портами 10/100 Мбит/с, 8 портов стандарта IEEE 802.3af PoE, 1 порт 10/100/1000 Мбит/с. Пропускная способность - 3,6 Гбит/с, мощность БП 96 Вт. |
1 |
10 000 |
10 000 |
Монитор видеонаблюдения RVi-M19P |
Монитор видеонаблюдения RVi-M19P (модификация 2016 года) выполнен на базе широкоформатной TFT матрицы с улучшенными характеристиками. Экран имеет размер 19.5 дюймов. Разрешение дисплея — 1980×1080. Трёхмерный гребенчатый фильтр эффективно устраняет цветовые искажения, расширяет полосу пропускания яркостной составляющей сигнала и препятствует появлению перекрёстных помех. Монитор высокого разрешения RVi-M19P снабжается видеовходами BNC и VGA. Дополнительные преимущества обеспечивает интерфейс HDMI. Он поддерживает максимальное качество в каждом из окон при просмотре текущего видео и архивов IP-видеорегистратора в мультиэкранном режиме. Если в системе регистрируется аудио сопровождение, по единому кабелю также передаётся многоканальный звук.
|
1 |
19 200 |
19 200 |
Итого: 75 800 рублей |
|
|
|
|
