- •Начальник с обаятельной улыбкой.
- •Список использованной литературы:
- •Список использованных источников:
- •Возвращение
- •Изделия моего папы:
- •Изделия Ольги Анатольевны
- •Интерьер дома:
- •История здания
- •Появление здания. Богадельня.
- •2.1. Женская Гимназия.
- •2.2. Использование здания, как учреждения.
- •3. Общеобразовательная школа.
- •Библиографический список:
МУНИЦИПАЛЬНОЕ БЮДЖЕТНОЕ ОБРАЗОВАТЕЛЬНОЕ УЧРЕЖДЕНИЕ
ДОПОЛНИТЕЛЬНОГО ОБРАЗОВАНИЯ ДЕТЕЙ
«ДОМ ДЕТСКОГО ТВОРЧЕСТВА»
Районный конкурс исследовательских работ
«История одного дома»
г. Вельск, 2013 г.
Содержание
|
1 |
|
12 |
|
15 |
|
21 |
|
28 |
|
34 |
|
37 |
|
40 |
А
нтоновская
Ирина,
4 класс (10 лет) - Дом
по улице Нечаевского
–
научный руководитель Шишкина Н. В., МБОУ «СОШ №3 г. Вельска»
Очень многие знают этот дом, многие ходят мимо этого дома, а я здесь родилась и живу. Я хочу рассказать Вам о доме №10 по ул. Нечаевского /д.№39 по ул. Советская в г. Вельске.
Местоположение дома.
Двухэтажный деревянный дом расположен в центре г. Вельска на перекрестке улиц Троицкой и Дворянской, которые в 1918 г. (в честь годовщины Октябрьской революции) были переименованы в ул. Свободы и ул. Советскую соответственно. В 1977 г. по решению исполкома областного Совета депутатов трудящихся улица Свободы вновь сменила свое название и до настоящего времени носит имя В.В. Нечаевского.1
Дата строительства дома. Сведения о людях, построивших дом.
Согласно техническому паспорту дом построен до 1917 года. Это двухэтажное деревянное здание. Двухэтажные деревянные постройки в г. Вельске датируются в основном ХIХ - началом ХХ веков.1 Ранее, жильцы считали этот дом Пахолковским, поговаривали, что строил его священнослужитель. Он был очень дотошный и отбирал только лучшие бревна, которые шли на строительство дома. Как мне стало известно, служил в Вельске священник Пахолков Дмитрий Васильевич. Был рукоположен в сан священника в Троицкий собор г. Вельска 21 ноября 1852 года. Однако в материалах музея сведения о проживании в данном доме Пахолкова не выявлены. Более точных сведений о дате строительства и людях, построивших дом, обнаружить не удалось.
Внешний облик дома.
Дом бревенчатый, двухэтажный. Наружные стены с обшивкой. Перегородки - деревянные. Перекрытия - деревянные отепленные. Полы - деревянные, окрашенные. В жилых комнатах половицы узкие, в коридорах - широкие. Оконные рамы двойные, глухие и створные. В некоторых квартирах вставлены пластиковые окна. Двери филенчатые. Стены с внутренней стороны обиты плитами из сухой штукатурки, в комнатах - оклеены обоями, в коридорах побелены и окрашены. Потолки деревянные, покрыты штукатуркой и побелены. Высота потолков на первом этаже 2.60 м, на втором этаже 3.00 м. Отопление - печное. На общей кухне русская печь с плитой, в жилых комнатах печи типа голландка. Печи старые, кирпичи большие. Дом имеет два входа - парадный с ул. Советская и "черный" во двор дома. Крыша покрыта шифером. На крышу выходят 5 печных труб. Балконы, веранды отсутствуют. Водопровода, канализации нет.
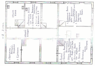
Планировка и интерьер дома.
На каждом этаже находится по 8 жилых комнат, 1 общая кухня, по 2 коридора (теплый и холодный),1 уборная и 4 кладовки. В плане второго этажа есть еще лестница.
Дом с коммунальными квартирами. Первый этаж это коммунальная квартира №1, второй этаж - это коммунальная квартира №2. В каждой квартире живет по четыре разные семьи. Все жильцы имеют по две комнаты, площади всех комнат разные.
Даты перестройки дома, изменения его облика.
Капитальный ремонт дома производился в 1966-1967 годах. Все жильцы были перевезены в переселенческие дома на ул. К. Маркса и ул. Мира г. Вельска. В доме были заменены полы в жилых комнатах, стены внутри дома были обиты листами из сухой штукатурки и оклеены обоями. По просьбе жильцов печи не меняли, был произведен только косметический ремонт, побелены. До капитального ремонта вход в дом и на первый и на второй этаж осуществлялся через одну двухстворчатую дверь. После ремонта вход на второй этаж сделали отдельным, поставили еще одну дверь и расширили крыльцо. Был оборудован второй выход во двор со второго этажа. Сейчас в доме два входа с ул. Советской, на каждый этаж отдельный, и два входа во двор. А лестницу на второй этаж перенесли от одной стены коридора, к другой. Раньше она была двойной, с площадкой посередине, а стала одиночной, прямой.
В настоящее время облик дома существенно меняется с каждым годом. Жильцы дома, собственники квартир, заколачивают окна, ставят пластиковые рамы вместо деревянных, меняют конфигурацию окон. Если внутренние изменения в доме не так заметны, то с улицы дом уже не имеет правильных пропорций, симметричности. Фотографии моего дома попали в фотопроект Григорьева В.В. «Вельск, который мы потеряли». Очень грустно смотреть на современные фотографии дома. На старых фотографиях дом выглядит статным.
Сведения о жителях дома.
Дом очень старый, возможно ему более 100 лет. За эти годы в доме жило много семей и жильцы очень часто менялись.
Я хочу рассказать о своей семье. Моя семья живет в этом доме с 1940 года, это более 70 лет. Я представляю уже четвертое поколение. Я родилась и живу в этом доме, здесь родилась и живет моя мама - Антоновская Галина Валерьевна 1972 г.р., здесь родилась моя бабушка - Антоновская Ольга Лаврентьевна 1949 г.р., здесь жила моя прабабушка - Сухопарова Елизавета Алексеевна 1912 г.р. Моя прабабушка Сухопарова (Середкина) Елизавета Алексеевна родилась в деревне Къянда (сейчас Ленино-Ульяновская) Вельского района 12.04.1912. Вышла замуж и её мужу Сухопарову Лаврентию Феодосьевичу предоставили жилье в доме № 10 по ул. Свободы (сейчас ул. Нечаевского). Жилье было предоставлено с мебелью. В ордере числился стол и буфет. Было это в 1940 году. Прабабушка долгое время работала в типографии Печорстроя, которая находилась в районе железнодорожного вокзала, рабочей. Затем она трудилась в редакции газеты "Ленинский путь" техничкой, курьером. Неоднократно награждалась грамотами, имеет звание "Ветеран труда". Вырастила четверых детей: 3 сыновей - Юрий 1934 г.р., Валерий 1937 г.р., Леонид 1939 г.р. и дочь Ольгу1949 г.р. (это моя бабушка). Прабабушка умерла 09.12.1994 года. Я ее не видела. Сейчас в доме из нашей семьи проживаю я, мой братик Иван и моя мама.
Со слов моей бабушки, Антоновской Ольги Лаврентьевны, я попыталась восстановить фамилии и имена людей, которые когда-либо проживали в нашем доме. Поэтажный план квартир с фамилиями жильцов я приложу к своей работе.
В ходе исследовательской деятельности я узнала, что в нашем доме проживала Дубинина Анна Петровна – бывший милиционер и главный цветовод города. Также я узнала, что в квартире, которая находится над нами, она была для сотрудников внутренних дел – милиции, проживал прокурор Рыбин, прокурор Смирнов Александр Афанасьевич, начальник милиции Шутов Борис Павлович. Когда была маленькой, жила Коробейникова (Шутова) Александра Борисовна. Сейчас она занимает ответственную должность начальника Управления Пенсионного фонда г. Вельска.
Памятные события, предания, истории, связанные с домом.
Особых преданий, событий, связанных с домом я не нашла.
Из воспоминаний прабабушки, мне известно, она говорила, что живет как на веранде, т.к. только в одной комнате у нас четыре окна. Два выходят на улицу Советская, два на улицу Нечаевского. И если, человек идет по ул. Советской и поворачивает на ул. Нечаевского, сидя дома, можно увидеть его по очереди во всех четырех окнах.
Бабушке больше всего запомнились первомайские и ноябрьские демонстрации. Когда колонны трудящихся уже проходили по площади, они останавливались на углу нашего дома и все флаги и транспаранты прислоняли к стенам дома. Дожидались транспорта организаций, чтобы увезти их. Люди поздравляли друг друга с праздниками, были нарядными, веселыми. Было очень интересно наблюдать за всем происходящим из окна дома. Мы всегда были в центре событий происходящих в нашем городе.
Я очень люблю свой дом. Мы всегда знаем, какие праздники проходят на центральной площади нашего города, т.к. её видно из нашего окна. Зимой мы наблюдаем за праздничными огнями новогодней ёлки, летом из окна смотрим салют в честь Дня города.
Как и в других домах, в нашем доме, люди рождаются, ходят в садик, школу, институт. Женятся и выходят замуж. Создаются новые семьи. Старые люди умирают.
Если бы дом мог говорить… Он бы, я уверена, порассказал нам такие удивительные истории, что даже самым талантливым фантастам не придумать… Он живёт вместе с нами, проживая жизнь каждого из нас, радуется нашим успехам и огорчается нашим неудачам.
Весной, когда после долгой и сумрачной зимы мы моем окна, кажется, что дом просыпается, протирая глаза и окна - его глаза начинают молодо блестеть и сверкать на солнце.
Мой дом – это моя Родина, моя крепость, наша история!
Приложения
Вверху: Дом после капитального ремонта в 1969 году.
Внизу: Выход во двор дома.
Моя прабабушка Сухопарова Елизавета Алексеевна
с моей мамой Антоновской Галиной Валерьевной в мае 1975 года.
ул. Нечаевского, дом № 10 справа.
Вельские вести 5 декабря 2003 (94) Н. ПРИБЫТКОВ.
ПАМЯТНИК ПРИ ЖИЗНИ... нужно ставить таким ЛЮДЯМ
"Уважаемый человек в городе". Так говорят о замечательной женщине, бывшем милиционере и главном цветоводе Анне Петровне Дубининой.
Незаметно, тихо рядом с нами проживают свидетели трех сменившихся эпох. Анне Петровне Дубининой 4- декабря исполнилось 95 лет. Она хорошо помнит время, - когда произошла Октябрьская революция, не забыла тяжелый крестьянский труд у себя на родине в Шенкурском районе.
В грозном военном 1943-м году поступила на работу в Вельский районный отдел милиции. Двадцать один год пришлось носить милицейскую форму этой женщине, а в трудовой книжке появилось 11 записей о поощрениях за работу в органах внутренних дел.
Сорок лет прошло, как Анна Петровна уволилась из органов и вышла на заслуженный отдых, Молодая пенсионерка не смогла беззаботно сидеть дома - с детства любила землю, цветы, нравилось ей постоянно общаться с людьми.
Ровно через 10 лет она пошла простой рабочей в городское зеленое хозяйство. С работы приходила не по часам, а как душа велела, все ушли домой, а она еще раз все проверит, подсчитает.
Хорошо запомнился один эпизод, когда я работал директором межрайкинопроката. Однажды А .П.Дубинина зашла ко мне в кабинет и с улыбкой заявила: "Товарищ директор, я забираю вас и еще четырех женщин на работу в теплицу". В то время все организации строго по графику направляли своих людей на работу в зелёное хозяйство. Я ей ответил: "Сам пойду, а вот женщин не отпущу - им еще фильмы нужно подготовить для отправки в четыре района".
Поскольку сразу договориться не смогли, она меня постращала и первым секретарем райкома партии В.И. Силуяновым, и председателем райисполкома К.И. Галкиным. В те годы была строжайшая партийная дисциплина, озеленению города тогда уделялось огромное внимание, поэтому принял решение отработать всем кинопрокатом в субботу и воскресенье. Позже при встрече с ней мы о теплом вспоминали те годы.
Об этой удивительной, милой, трудолюбивой женщине можно написать целую книгу. Так считают бывший главный агроном горкомхоза, заслуженный агроном РСФСР А.Н. Воронцова и мастер зеленого хозяйства Л.И. Пескишева. Анну Петровну многие считают наставником, учителем по выращиванию цветов, работе с землей. Доброту и любовь к людям она привила своим двум сыновьям, дочери, внукам и правнукам.
Вот только есть вина власти по отношению к этой труженице - не позаботились о жилищных условиях. Живет она в большом двухэтажном доме с печным отоплением на углу улиц Советской и Нечаевского и сегодня вспоминает бывшего мэра города В.В. Нечаевского, обещавшего ей квартиру в первом же новом доме, который будет построен в Вельске. Но Василий Васильевич ушел на должность директором совхоза- техникума, и больше никто в горсовете о ней (в части жилья) не позаботился.
"Теперь как-нибудь доживу и в старой квартире, - говорит она, -но хотелось бы хотя бы одну ночку провести в квартире со всеми удобствами...".
"Побольше было бы таких людей в городе и деревне, тогда и жизнь на земле казалась бы яругой, - говорит Почетный гражданин города Вельска Александра Николаевна Воронцова. - Таким, как А.П. Дубинина, нужно ставить памятники при жизни". С юбилеем Вас, Анна Петровна! Добра вам и здравия!
Начальник с обаятельной улыбкой.
На пути к кабинету меня встретила красивая представительная женщина. На первый взгляд, 40-45 лет. Форма одежды – деловая. Прямая осанка, свободные движения выдавали в ней выработанную годами спокойную сосредоточенность. А голос, без металлических ноток, но уверенный, – лидерские качества.
– Вы, наверное, ко мне? – спросила женщина, слегка улыбнувшись.
– Думаю, да, – ответил я, уже догадавшись, что передо мной тот человек, ради которого я здесь и нахожусь.
– Пройдёмте в мой кабинет, – пригласила она.
Так мы и познакомились с героиней нашего материала – начальником Управления Пенсионного фонда Александрой Борисовной Коробейниковой.
В одном из номеров газеты мы уже сообщали о том, что Управление Пенсионного фонда переехало в новое здание. Именно героиня нашего материала приложила усилия к тому, чтобы создать максимально комфортные условия для жителей нашего города и сотрудников учреждения.
На пути к кабинету меня встретила красивая представительная женщина. На первый взгляд, 40-45 лет. Форма одежды – деловая. Прямая осанка, свободные движения выдавали в ней выработанную годами спокойную сосредоточенность. А голос, без металлических ноток, но уверенный, – лидерские качества.
– Вы, наверное, ко мне? – спросила женщина, слегка улыбнувшись.
– Думаю, да, – ответил я, уже догадавшись, что передо мной тот человек, ради которого я здесь и нахожусь.
– Пройдёмте в мой кабинет, – пригласила она.
Так мы и познакомились с героиней нашего материала – начальником Управления Пенсионного фонда Александрой Борисовной Коробейниковой.
В одном из номеров газеты мы уже сообщали о том, что Управление Пенсионного фонда переехало в новое здание. Именно героиня нашего материала приложила усилия к тому, чтобы создать максимально комфортные условия для жителей нашего города и сотрудников учреждения.
«Клубы, танцы – эх, времена были…»
Кратко говоря о школьных и студенческих годах Александры Шутовой, героиню без лишней лести можно охарактеризовать как комсомолку, спортсменку и просто умницу. «В школе я училась хорошо – на 4-5. В особенности мне математика нравилась – не вылезала с факультативов», – смеётся Коробейникова. Она росла девчонкой спортивной; пластический этюд «Три грации», в котором она участвовала, был в программе ансамбля «Романтики».
Уже поступив в Сокольский целлюлозно-бумажный техникум (специальность экономист), Александра увлеклась волейболом, а также участвовала в художественной самодеятельности: сценки, конкурсы. Особенно хорошо удавались ей юмористические монологи: «Память у меня хорошая – заучивать тексты проблемы не составляло», – поясняет Александра Борисовна.
Студенческие годы для активистки, помимо учёбы, конечно, ассоциируются со стройотрядом: «Сенокос, поездки на картошку… Клубы, танцы – эх, времена были…»
Возвращение на Родину
Однако, студенческие годы окончились, наступило время трёхлетней работы по распределению. А определили Сашу в Ульяновскую область… Деревня деревней – «три дома» и бумажная фабрика, на которой все жители и работают. Не стала исключением и наша героиня. «Куда ты приехала?!» – с ходу воскликнул кадровик, встречавший Александру на вокзале. Однако, не испугалась девушка предстоящей «ссылки». Жильём обеспечили, и голодом сидеть не пришлось, и не скучала Александра – в театральных сценках без неё не обходились в местном Доме культуры. В хоре пела, с коллективом по области разъезжала.
В 1981 году Саша вернулась в родной Вельск. Около года работала в банке, а затем устроилась в Райфинотдел на должность инспектора по штатам: «Более десяти лет продержалась я на этой должности – проверяла предприятия на штатные нормативы». Работа в Пенсионном фонде пришлась на 1991 год, Александра Борисовна стояла у истоков нововведённого учреждения. Сначала – на должность старшего уполномоченного назначили, а с 2001 года – начальником управления. А своей профессиональной деятельностью она довольна: с людьми работать интересно, да и родное всё – своё. «По главам ходила – землю выцарапывала для здания Пенсионного фонда. Душу вложила в обустройство нового помещения, – делится чувствами женщина-руководитель. – Сейчас активную работу по благоустройству здания проводим. Чтобы и коллективу было удобно работать, и клиентам нашим комфортные условия создать». А посетителей у учреждения более чем достаточно: пенсионеры, работодатели, мамочки с детьми.
Крепки семейные узы
Их было три сестры: Оля, Саша и Люда. Ольга, фармацевт по специальности, в Архангельск уехала, а старшая сестра Людмила – на Дальний Восток. «Люды уже нет в живых, а с Олей мы часто видимся – поддерживаем связь. У нас с ней и дети одного возраста. Она сейчас в Тюмени живёт, каждый год приезжает».
Отец героини, Борис Павлович Шутов, в годы Великой Отечественной войны участвовал в боях на Дальнем Востоке. Удостоен многих наград. Большую часть жизни проработал в милиции – на пенсию вышел в должности начальника отдела. «Девчонкой, помнится, часто к нему в гости наведывалась – меня в отделении все в лицо узнавали и без лишних расспросов прямиком к отцу вели, – с улыбкой вспоминает Александра Коробейникова. – Он у нас весёлым был – душой любой компании. Все его любили».
Надежда Глебовна, мама Александры, всю свою жизнь посвятила семье – труженица, истинная Хозяйка. Её родители рано ушли из жизни, братья и сёстры на ней остались. Хочешь – не хочешь, а самостоятельности обучишься. «Дом, огород – всё хозяйство на маме было. Когда папа умер, мы ей помогали, конечно».
Сложилась и личная жизнь нашей героини. Со своим будущим мужем Иваном Александра Борисовна познакомилась через общих знакомых. В кино ходили, гуляли. Через три года решили пожениться: «Мне на тот момент уже 25 лет было, так что к делу с умом подходила – с головой в омут не бросалась», – объяснила Александра Борисовна. И в браке они уже двадцать седьмой год, и не в каком-нибудь, а в самом что ни на есть счастливом. Хвалит супруга счастливая жена и мать – поддерживает в начинаниях, а главное – понимает и любит. «С детьми оставался, когда я на учёбу в Архангельск уезжала. Понимал, что мне тоже непросто приходится – и высшее образование получать надо, и работать. Хороший он у меня мужик», – смеётся Александра Борисовна.
А она супругу двух сыновей подарила. Младший, Алексей, по стопам старшего продвигается: школу одну окончили (№ 3), в Экономический техникум поступил Лёша следом за старшим братом. Затем – в Рыбинскую авиационную академию. Младший сейчас в Североморске служит, а Василий – в Рыбинске обосновался. Работает. «Всё моё будущее с детьми связано. Вот с супругом «плацдарм» для ребят готовим – квартира, огород, хозяйство».
К слову, о толерантности
За годы работы на посту начальника у Александры Борисовны, человека весёлого и неутомимого, выработалась жизненная позиция: «Надо быть оптимистом – всегда. Как бы всё в жизни ни было плохо, из любой ситуации можно найти выход. Очень важно уметь общаться с людьми, ведь неопровержима истина: «Как ты относишься к людям, так и они к тебе будут относиться». А нам остаётся лишь согласиться с уважаемой героиней. Толерантность и терпимость к ближнему – превыше всего. И очень важны эти качества для работников возглавляемого Коробейниковой Пенсионного фонда.
С
тас
НУЯНЗИН
Максимова Арина, 4 класс (10 лет) - Дом купца Юдина –
научный руководитель Шишкина Н. В., МБОУ «СОШ №3 г. Вельска»
Стихи, посвященные дому купца Юдина, расположенному по адресу:
г. Вельск, ул. Дзержинского, д.59
На Дзержинского домик есть,
Что не можно глаз отвесть:
Окна – глазки вырезные,
Чердаки – все расписные.
Дом построил сей купец,
Сам московский молодец.
Где с женой, детьми он жил,
Только счастья не нажил.
Революция пришла,
Дом купца враз забрала.
Многим ведомствам служил,
Школой очень долго был.
В руки добрые попал, -
«Юрьевым подворьем» стал.
Принимают здесь гостей,
Аж с заморских волостей.
С виду дом преобразился
И внутри весь обновился.
Но облика не растерял-
Украшеньем Вельска стал!
В нашем городе Вельске много зданий с интересным историческим прошлым. Когда идёшь по центральной улице Дзержинского (бывшая улица Вологодская) загадочность, красота и величие дома № 59 меня всегда притягивали. Глядя на этот дом, мне захотелось узнать его историю, кто его построил, кто раньше жил в нём, что в нём располагалось.
Здание, находящееся по адресу: г. Вельск, ул. Вологодская, д. 59,было построено в конце XIX (19) века и принадлежало крестьянке Анне Асекритовне Юдиной, которая была очень красивой, интеллектуальной, дородной и видной женщиной. Она нигде не работала, была хорошей рассказчицей. Анна Асекритовна познакомилась с купцом Юдиным в Москве, когда ездила к родственникам. На момент знакомства ему было 60 лет, он был уже женат второй раз, она тоже была замужем. Но они всё равно поженились, и купец Юдин подарил молодой жене этот дом.
Первоначальный облик здания, зафиксированный на фотографии, позволяет говорить о том, что оно строилось как жилой дом. Здание деревянное двухэтажное прямоугольной формы, вытянутое сообразно участку в глубину усадьбы, с двускатной тесовой кровлей, обшитое вагонкой. Окна второго этажа были значительно выше окон первого этажа. Вход в здание был как со стороны улицы, так и со стороны двора. На каждом этаже имелось по шесть комнат. Рядом с домом располагались надворные постройки: каменная и деревянная кладовые и баня. До Октябрьской революции в передней половине первого этажа здания располагался магазин, в котором торговали швейными машинками «Зингер», а заднюю половину первого этажа и второй этаж занимало полицейское управление, имевшее на дворовом участке арестное помещение. В то время руководил полицейским управлением Прахов В.С., великий уездный исправник, полковник. Торговля, по всей вероятности, принадлежала родственнику А.А. Юдиной - Юдину Никите Андреевичу (или Якову Ивановичу – точные сведения о нём отсутствуют), который жил в Петрограде, и вернулся в г. Вельск только после Февральской революции.
Приказом по отделу управления Вельского уездного совета от 25 июня 1918 года двухэтажный деревянный дом с мезонином А.А. Юдиной был муниципализирован ввиду начала гражданской войны и передан медико-санитарному отделу социального обеспечения Вельского уездного исполкома. Позднее верхний этаж здания был отдан под квартиры, а на первом этаже располагалась пивная.
В 1930–е годы здание было передано под школу. Эта школа первоначально называлась «Образцовой», туда переводили детей, которые посещали детский сад № 1, что по улице 1-го Мая, который в ту пору был единственным в городе. Директором школы была Беляева Фаина Васильевна, а затем Лаврова Глафира Александровна, которая носила звание «Заслуженный учитель». Как вспоминает моя прабабушка, очень интересно проходили в школе пионерские сборы. Звеньевые отдавали рапорт председателю отряда, а тот отдавал рапорт председателю дружины, а дальше пионервожатой. Зимой делали искусственный костёр – на пол клали еловые ветки, а в середину ставили большой фонарь.
С 1945-1946 гг. в этом здании существовала Вечерняя школа. В 1992-1993 году переход с печного отопления на электро, но не полностью, а частично, в связи с переездом Райкома. В это время классы располагались в 6 классных комнатах. С 1990 года дополнительно в этом здании велось ещё обучение медицинских сестёр. У школы были минусы, она недополучила тепла, отопление было печное, 10-12 печей. Через дорогу от школы стояли ларьки, в которых продавали морс и квас. Когда начали строить кинотеатр «Мир», эти ларьки снесли. Школа имела огромное значение для народного образования и судеб людей.
В советское время экстерьер здания подвергся незначительным изменениям: увеличена высота окон первого этажа, крыша покрыта листовым железо, полуциркульное окно на фронтоне крыши заменено на прямоугольное большего размера. Несмотря на изменения, здание сохранило характерные черты архитектуры северного провинциального города рубежа ХIХ-ХХ вв. и представляет интерес с точки зрения истории градостроительства. Оно расположено в границах охранной зоны г. Вельска, проект которой разработан НИИ Урбанистики г. Санкт- Петербурга.
В 1999 году дом был выкуплен семьёй Любарских. Был проведён капитальный внутренний ремонт и реставрация внешнего облика здания. С ноября 2000 года в этом доме располагается торгово-гостиничный комплекс «Юрьево подворье». Территория около дома всегда идеально убрана, можно смело сказать, что здание является украшением города. Несмотря на то, что изначально дом строился для жилья, за свою историю всегда являлся социально значимым объектом для жизни многих и многих людей. Каждый год, летом, собственники здания празднуют вместе с жителями города очередной день рождения этого дома. А значит, история дома продолжается…
К
узнецова
Алёна, 8
класс - Дом
Малышевых
– научный руководитель Горбунова А.
Н., МБОУ «Судромская СОШ № 13»
Деревня, в которой я живу, имеет многовековую историю. 100 лет назад была она большой, с множеством маленьких деревушек, расположенных по обеим сторонам реки Ваги. Жили и трудились здесь крестьяне, ремесленники, были и купцы. Центром Судромы в 19 веке была д. Прилук. Там находились сторожка, церковь, кладбище, множество крестьянских домов. Со временем центр поселения переместился в д. Погост. Здесь уже были Ильинская, Николаевская церкви, часовня, два дома священнослужителей и ещё ряд зданий (пекарня, фельдшерский пункт). Частных домов было немного, население в основном проживало в близлежащих деревушках Иванское и Пайтово. Между двумя церквями находилось кладбище, достаточно большое оно выходило к реке Солде.
Красным
цветом выделена д. Погост.
После революции 1917 года появились новые здания в д. Погост. Были они вывезены из отдаленных деревень. Ранее принадлежали богатым судромчанам.
Здание современной почты было отправлено водным путём по Ваге из д. Важская Запань. Дом был разобран и сложен в виде плота. Затем собран вновь уже на месте в д. Погост. За почтой стоял ещё один дом. Называли его домом дорожников. Т.е принадлежал он дорожной организации. По словам местных жителей, он был одно время детсадом, потом в нем жили дорожники, и затем он был отдан семье Макаровых, которые и жили в нем долгое время. Затем дом был продан, а вот кому, и куда он исчез, никто сейчас не знает. Ещё один дом из новеньких – это здание магазина. Сейчас там магазин Горпо, а в 30-е годы был магазин сельпо. Откуда он был привезен? Кому принадлежал ранее? Этот дом и его судьба оказались настолько интересными для меня, что я решила более подробно исследовать его.
Стрелкой указан магазин Горпо (60-е годы из архива школьного музея)
Синей стрелкой указано здание почты (снимок 60-е годы, из архива школьного музея)
Д
ом
этот ранее принадлежал Малышеву
Александру Васильевичу. Стоял он в
деревне Луневской. Был построен в 20
-годы. Примерно в 37 году был национализирован
властями у зажиточника Малышева,
перевезён в д. Погост.
Малышев Александр Васильевич стоит справа (снимок конца 20-х годов из семейного архива Гашевых)
М
Малышев А.В. сидит у столика справа (снимок конца 30-х годов из семейного архива Гашевых)
Почему Александр Васильевич лишился дома и как именно это произошло? Малышев А.В. был сыном богатого судромчанина Малышева Василия Прохоровича, который жил в деревне Луневская, имел завод по переработке смолы-живицы там же и держал на паях с ещё двумя хозяевами почтовую станцию. Имел Василий Прохорович большой дом, крепкое хозяйство. По воспоминаниям судромчан (записи в школьном музее, собраны Шаманиной А.В) он был очень трудолюбивым человеком. Большой труженик, так его называли в деревне. Всю работу делал сам, во многом помогал сын. Были в Судроме такие хозяева, о которых отзывались очень нелестно, а вот о Василии Прохоровиче таких высказываний не было. Когда установилась советская власть, его лишили имущества, дома и отправили на Соловки. Незадолго до этого он, предчувствуя неладное, отделил сына. Дом для сына строить начали до 1918 года, а заканчивал строительство Александр самостоятельно со своей женой Марией уже году в 1925. По рассказам родственников Малышевых, Мария Львовна вспоминала о том, как жалел её муж за то, что надрывалась она вместе с ним на стройке, выполняя тяжёлую мужскую работу.
Василий Прохорович вернулся домой перед войной, но очень был слаб и болен. Жаловался на руки, которые невыносимо болели. Суставы были застужены, а руки сплошь усеяны язвами. Приходилось там плотничать, чтобы не умереть с голоду, одежды теплой, а тем более рукавиц никто не выдавал. Немного пожил он после возвращения и вскоре умер. По словам его родных вернувшись, жил один, родные только навещали. Вместе жить было нельзя, власть запрещала. Его дом в два этажа, с зимовкой стоял сначала на месте. В 1918 году там останавливался отряд красных под руководством Кривенко И.С. Отряд жил на втором этаже дома, а невестка Мария и жена Анна Ивановна на 1 этаже. Александр Васильевич в это время находился в г. Вологде.
Дом, предположительно принадлежавший Малышеву Василию Прохоровичу.
П
озже
Малышевы переселились в свой дом,
забрав с собой мать Анну Ивановну. Дом
Василия Прохоровича был увезён из
деревни. Точно я не могу сказать, что с
ним стало. По словам родных, его увезли
в Вельск. По записям Шаманиной А.В. его
отдали колхозу под детсад в д. Погост.
Опрашивая старожилов Судромы, я выяснила,
что детсада на Погосте не было. Но
отвечали на мои вопросы люди 1927-1935 года
рождения, то есть они, скорее всего и
не могли знать, был ли детсад в 30-е годы.
Лишь один житель (Песьяков К.Ф. с д.
Дьяковская (Иванское)) подтверждает
то, что в доме за почтой одно время был
детский сад. К сожалению, эти воспоминания
были записаны несколько лет назад.
Сейчас его нет в живых и уточнить я не
могу. По этой версии получается, что
дом Малышева В.П. стоял за почтой, он же
дорожный дом, в дальнейшем дом Макаровых.
Сын Макаровой Марии Ивановны Николай
рассказал, что дом этот был обычным, в
один этаж, выглядел он немного неухоженным.
После войны его или увезли или разобрали.
Если это действительно так, то получается
что рядышком в нескольких метрах друг
от друга стояли дома отца и сына.
Да, Александр Васильевич не смог избежать раскулачивания. Будучи сыном кулака, построив самостоятельно дом, он вызывал недоверие у местных властей. Дома он лишился. Забрали у нового дома переднюю часть. Самого его с женой оставили в зимовке. Работал А.В. в колхозе, на лесохимии. Имел дочь Надежду. На судьбу не жаловался, старался всё встать покрепче на ноги. Был, как и отец крепким, рачительным хозяином.
На снимке Малышевы Александр Васильевич
и Мария Львовна (снимок конца 30-х годов из семейного архива Гашевых)
Когда началась Великая Отечественная война, в октябре 1941 года был мобилизован на фронт. Был рядовым 1248 сп. До января 1942 года вместе со своей частью пребывал близ г. Череповца Вологодской области. Там обучались военному делу. Писал письма домой. В каждом письме неизменно интересовался жизнью домашних, переживал за них. Давал советы, как прожить без голода. Передавал нежные приветы любимой внучке Ниночке. От писем веяло тоской по родным, по земле, по родному и такому далёкому от него дому. Прослужив четыре месяца, пишет: «Вот уже 4 месяца как я с дому, а кажется, будто 4 года». Вместе с Александром в части служили его товарищи с Пакшеньги, были и судромчане с д.Пайтово, с д. Телешевская (Семёново), с Прилука .«Живем все вместе, друг другу даём докуривать, да к одному огоньку или спичке бежим. На артели всё же веселее» - писал Александр жене Марии. С конца марта 1942 года писем нет. Следующее письмо - открытка только 4 июня. Писал её Александр Васильевич уже из госпиталя. «Вот и свернулся ваш дедка с копылков, уж 3 день как лежу в госпитале. Заболел весь укашлялся. Часть наша ушла куда-то в тыл. Ну, я пролежу недолго, после выздоровления снова на фронт». А уже в конце июня Мария Львовна получила похоронное извещение. В нем говорилось, что её муж умер от тяжелой болезни (туберкулёз) и похоронен в г. Боровичи Ленинградской области на городском кладбище.
Тяжелые
бои шли тогда под Ленинградом, очень
многие жители нашей области воевали
там и многие погибли. Тяжёлой была и
военная специальность Александра
Васильевича, сапёр.
Похоронное извещение
Именной список рядового состава погибших и умерших.
Мария Львовна осталась вдовой, тогда же умерла и свекровь Анна Ивановна. Не упасть духом совсем не дала тяжелая работа в колхозе, да заботы о внучке Нине. Мария Львовна прожила долгую жизнь, уже в годах она продала зимовку и двор (все, что осталось от дома) и жила у дочери в д. Погост.
Мария Львовна слева. Зимовка, в которой жила семья.
(снимки 50-х годов из семейного архива Гашевых)
Зимняя изба
Купили дом Малышевой М.Л. семья Дорофеевых. Они достроили дом.
Так сложилась судьба у хозяина дома и его домочадцев, ну а сам дом по-прежнему стоит в д. Погост. Его внешний вид практически не менялся. Каждый день посещают его судромчане, приходя за покупками, и никто уже по истечении времени, кроме родных не знает настоящей истории этого дома.
Д
ом
был выстроен из кругляка, дерево –
сосна. Углы рублены в лапу. Внутри брёвна
были стесаны.
Под
крышей мезонин. По площади был он не
маленьким, вперед выходили три окна.
Низ дома состоял из избы и горницы. Дом
был крестовым. В мезонин вела лестница
с моста.
Место входа в мезонин отмечено красным.
Окон было со стороны фасада 5 и, скорее всего, по 3 с боков. После перевозки в доме изменились окна. Их стало 3 с фасада, оконные проемы были увеличены. Боковые окна зашиты. Рубленая стена вдоль дома была убрана, так как магазин нуждался в большом торговом зале. Части стены остались и в торговом зале и в подсобном помещении.
Мезонин использовался сначала как контора сельпо, затем вход туда заколотили, окна зашили. Само здание обшили вагонкой и выкрасили. Был также и прорублен вход в дом, с фасадной стороны. Перед входом высокое крыльцо с навесом. Позже пристроили к дому небольшой склад, а крылечко обшили, превратив его в закрытое помещение.
Все двери в доме старые, возможно они из этого дома. Входные двери массивные, думаю, что они не принадлежали Малышевым. Скорее всего, привезли их из другого какого - либо дома. Здание с самого начала, а это примерно 37 год, использовалось под магазин. Сначала это был магазин сельского потребительского общества, затем городского. С 1950 года был продуктовым. В 90-е годы он был закрыт. Здание не использовалось, в конце 90-х вновь открылся. Сейчас это и продуктовый, и промышленный магазин.
Родственники Малышевых (Гашевы, Звездины) живут в Судроме. Они бережно хранят сведения о своей семье, жалея своих предков, на долю которых выпали тяжёлые испытания. Дом, который пережил своего хозяина, напоминает нам о тех трудных временах, заставляя бережнее относиться друг к другу.
П
оликарпова
Вероника, 8
класс - Дом
Дмитриевых
– научный руководитель Горбунова А.
Н., МБОУ «Судромская СОШ № 13»
Да, не в том чудо, что дом укрывает нас и греет, что эти стены – наши. Чудо в том, что незаметно он передает нам запасы нежности – и она образует в сердце, в самой его глубине, неведомые пласты, где, точно воды родника, рождаются грезы. А. Сент-Экзюпери
История – это наше достояние, которое мы должны беречь, знать и помнить. Её мы собираем по частичкам, как мозаику с помощью архивных документов, летописей, памятников культуры. Среди множества последних, особым памятником являются дома. Будучи прямыми свидетелями событий прошлого, они отражают стиль, культуру и нравы наших предков.
Дом, о котором пойдет речь, находится сейчас в деревне Луневская МО «Судромское». Ранее это была деревня Бордуковская. В миру её называли Артемьево. Дом был построен Дмитрием Дмитриевым примерно в 60-70 годы 19 века. Сама деревня была достаточно богатой. Дома как на подбор, большие, крепкие. В 30-е годы 20 века там проживало порядка 16 семей, приблизительно 8о человек. ( Приложение 1 )
Рядом вплотную к Бордуковской примыкала деревня Луневская, в народе названа была Кривой, из-за множества поворотов. В деревне проживало 25 семейств, 125 человек. Обе деревушки пострадали в годы коллективизации, так как там проживало много зажиточных, состоятельных крестьян. Все они были раскулачены, многие лишились имущества, некоторые семьи тайком уехали из Судромы навсегда.
Дом, принадлежавший Дмитриевым, был двухэтажным. Скорее всего, хозяин тоже был из зажиточных крестьян. Об этом говорят размеры дома и усадьбы. С выдумкой выстроенный, он имел центральный вход и по обе стороны 2 избы. Ну и конечно главным украшением огромного красавца дома были росписи на фронтоне и портик с четырьмя колоннами. Позволить себе украсить подобным образом дом мог далеко не каждый. (Приложение 2)
Обратившись к материалам школьного музея я узнала следующее. Фамилия Дмитриев не совсем характерна для Судромы. Семейств с такой фамилией в начале 20 века было два. Одна в Артемьеве и еще одна на Иванском. В д. Иванское семья исчезла в 30-е годы. Дмитриевы в Артемьеве остались, а их потомки и по сей день живут в Судроме в д. Луневской. Остановимся подробнее на доме в д. Бордуковской. Как я сказала ранее, дом принадлежал Дмитрию Дмитриеву. Он имел двух сыновей Константина и Ивана. Когда братья выросли, они разделили отцовский дом на две части. Произошло это, по словам местных старожилов в результате конфликта. Был это конфликт личного характера, или семья просто пыталась уберечься от раскулачивания, как многие семьи в ту пору, отделявшие детей, разрушая крепкие хозяйства на несколько, я не знаю. Но тот факт, что жившие в основном доме хозяева, речь идёт об одной женщине пожилого возраста, проживающей в доме в 60-е,70-е годы, не общались с хозяевами второй половины дома, подтверждает наличие конфликта. (Приложение 3)
Раздел дома произошёл примерно в 30-е годы. Задняя часть со всеми постройками досталась Константину, а переднюю часть дома с росписями забрал себе Иван. Уехала половинка дома совсем недалеко, через дорогу. (Приложение 4)
После раздела и переезда на новом месте появился не двухэтажный красавец дом, а одноэтажный. Было убрано 7 нижних рядов. Этому свидетельствует номера, написанные на бревнах дома Ивана. (Приложение 5)
Еще одним подтверждением того, что дом перевезен, являются такие факты: странный неестественный вид дома на горе и сбитые неровно доски на фронтоне дома внизу. Собрать ровно, как должно быть хозяева вновь уже не смогли. (Приложение 6)
Вскоре дом, принадлежавший Ивану, в годы советской власти был внесён в список памятников архитектуры конца 19 века как пример синтеза классицизма с традиционными народными приемами деревянной архитектуры. Описывать его отдельно от основного дома, мне кажется, будет неправильно, поэтому свой рассказ буду выстраивать, опираясь на исследования того и другого здания.
Итак, основной дом выстроен в конце 19 века. Стоял он на оживленном Московском тракте. Характерные городские веяния проникали с торговыми людьми на север, это влияние и выразилось в неком подражании городской архитектуре. Дом выстроен из сосны. Тип строительства старо-русский. Иначе его ещё называют угро-финским типом строительства. Дом крестовой, но если рассчитывать стены, то получается необычное сочетание - 7 стен. Однако, внимательно исследуя расположение окон, я определила, что 7 стена не проходит сквозь все здание. С одной стороны раздел избы на 3 окна, с другой стороны на 2. То есть речь идёт о двух стенах. Значит дом крестовой шестистенок. Жилым был, скорее всего, только 1 этаж. На втором этаже по всему периметру только оконные проемы, без косяков. Они закрыты ставнями или наглухо заколочены. Мне удалось побывать в доме. На уровне второго этажа ощущение такое будто дом только построили, а дальше доделать не успели. Но если учитывать то, что дата строительства дома относится к концу 19 века, возникает мысль, а может дом просто хотели переделать, и поэтому все убрано на втором этаже. Еще такая версия может быть рассмотрена: на втором этаже место под клети, а не для жилья. Одно могу сказать точно - дом строился под большую семью и более того, в нем могли жить несколько семей и каждая из них имела свой выход по центру дома. (Приложение 7)
Передняя часть дома была украшена росписями и балкончиком, за которым располагалась светёлка. Иван перевез перёд дома приблизительно в начале 20 века. По сведениям школьного музея Дмитриевы в 30-е годы проживали уже отдельно. В основном доме жил Константин с дочерями Александрой и Анисьей. Сведений о его жене к тому моменту нет, значит, её уже не было в живых. Иван проживал с женой Евдокией Арсеньевной, с сыном Александром, невесткой Елизаветой, внуком Владимиром и дочерью Марией. В дальнейшем Мария Ивановна жила отдельно в маленькой избушечке, тут же в деревне. Умерла она в 70-е годы. Односельчане вспоминали её как очень доброго, хорошего человека. Мария Ивановна не имела семьи, она хорошо общалась и с детьми Ивана, и с сестрами двоюродными, дочерями Константина. Ходила и в тот, и в другой дом. После её смерти избушку убрали. После смерти Ивана в доме хозяином стал его сын Александр.
Иван оставил сыну дом в хорошем состоянии. К перевезённому дому уже пристроили двор. Дом был огорожен. (Приложение 8)
Александр Иванович постарался сохранить его индивидуальность. Дом не обшивался. У самого Александра семья была большая. Детей имел он шесть. 1910 года рождения, он был участником Великой Отечественной войны. Имел награды. В деревне ему дали прозвище Сашка-коммунист. Так его и вспоминают по этому прозвищу сейчас. После войны работал в колхозе. Его жена была женщиной тихой, незаметной. Как говорили односельчане, немного забитой. На то конечно были и причины: большое семейство и тяжёлый труд в сельском хозяйстве, плюс ещё и своя животинка.
Все дети выросли, разъехались. В деревне остался сын Николай. По каким-то причинам дом был продан семье Жильцовых, которые выехали из-за реки. Там ликвидировались деревни. Происходило это в 70-е годы. Николай с семьёй жил уже в доме дяди Константина на горе. Потом в конце 90-х г.г. по причине плохого состояния дома он с семьёй переехал. Жильцовы в доме Ивана переложили печи, так как старые печи находились в плачевном состоянии, и топить их было нельзя. Хотели они обшить и дом, но сельсовет запретил им это делать, так как дом был признан памятником архитектуры. Сейчас дом перешёл в руки новых хозяев. Ими стала приезжая семья Киселевых. Новые хозяева на сегодняшний день ничего в доме не меняли, весь фасад дома остается в неизменном виде. Правда сказываются годы, и дом ветшает. Со стороны дороги появилась обшивка. Она желтого цвета. В какое время это сделали, я узнать не смогла. Росписи привлекают внимание и по сей день. В Судроме два таких расписных дома. Второй дом находится в деревне Прилук. В нем жила семья Поповых. Семья зажиточных крестьян. Дом был выстроен отцом для двух своих сыновей. Жить собирались вместе, дружно работали, имели крепкое хозяйство. Дом был расписан для того, чтобы глаз радовал и богатство да процветание своим хозяевам приносил. (Приложение 9)
Росписи выполняли братья Петровские из соседнего села Благовещенское. Я считаю, что дом Дмитриевых украшали те же мастера и примерно в то же самое время. Вот некоторые доводы в подтверждение сказанного.
На фасаде домов изображены лев и единорог. В обоих случаях лев слева, единорог справа. Похожи оба изображения, разница лишь в том, что у Поповых лев и единорог изображены в фас, а у Дмитриевых в профиль. Думаю, что это было сделано специально, чтобы как-то по-разному выглядели росписи, не копировали друг друга. У льва на доме Дмитриевых высунут красного цвета язык, у Поповых лев оскалил зубы. (Приложение 10)
У Дмитриевых свесы кровли украшены цветочным орнаментом разных цветов, а у Поповых свесы выкрашены разными цветами, симметрично, ровными фигурами, а сверху тот же похожий орнамент. (Приложение 11)
У Дмитриевых орнамент и на фронтоне у изображений льва и единорога. Присутствует он и на своде портика. Но очень трудно воссоздать полную картину росписи дома. Поперечные дощечки приколочены вдоль всей кровли. Некоторые имеют следы краски, некоторые будто не отсюда и приколочены для поддержки. Есть, как и у Поповых, шахматный рисунок на своде четырехколонного портика, но он не выдержан до конца и исчезает уже на половине. (Приложение 12)
Одинаковые травяные узоры на стене над окном светёлки у обоих домов. В отличие от Поповых на доме Дмитриевых отсутствует балкон как таковой. Есть портик, а перил балкона нет. Краски, использованные мастерами, одинаковые. Это красные, желтые, зеленые, синие цвета. Очень трудно сегодня сравнивать росписи, на доме Дмитриевых они утратили своё первоначальное состояние, подвергались восстановлению потом, но видно, что неудачно. Я мысленно попыталась воссоздать картину дома до раздела. Дом огромный в 2 этажа, на нем затейливые завитушки и изображения. Каким должно быть творческим человеком был его первый хозяин, если решил, что символом процветания и могущества семьи будут украшения на доме. Что же символизировали эти росписи?
В северных сказках лев представляется верным для человека другом, служащий ему верой и правдой. Изображался стоящим на задних лапах, с поднятыми передними, а также стоящим или лежащим в геральдической композиции по сторонам "древа" или цветов в вазоне с грозно поднятой лапой. Единорог – конь с рогом на лбу. Часто он изображается стоящим на задних ногах. Самые ранние сведения о нем и его изображения относятся к ХV в. Единорог (он же индрик или инрог) – мифическое животное, образ которого, может быть, возник под воздействием восточных культур. Носорог и конь соединились в образ одного зверя – единорога, причем по преданию он был наделен особой силой, способной поражать злых людей и еретиков. Чаще всего единорог и лев располагаются на фасаде по сторонам вазона или дерева, иногда в позе схватки, символически воспроизводя борьбу светлых и темных сил, дня и ночи. Чаще всего эти фигуры встречаются в росписях Поважья. Лев и единорог - это обереги от злых духов. Лев, например, имел охранительный смысл, а единорог символ Христа. Лев являлся символом богатства, золота, благополучия и процветания. Единорог символизировал благородство, храбрость и мудрость. Лев - символ солнца, а единорог луны. В целом оба эти мифологические животные – защита дома и его жителей от всего недоброго, символ процветания рода и благополучия. Травянистый рисунок создаёт образ добротного сада – идеал крестьянской жизни.
Действительно неслучайно хозяин дома-богатыря так украсил его. Скорее всего, имел он виды на добротное большое хозяйство, мечтал о большой семье, которая всегда под одним кровом будет жить. Не получилось так, как хотелось. Что стало тому виной – людские разногласия или тяжелое время, когда становилась на ноги молодая советская власть, так больно ударившая по крестьянину-середняку, неизвестно. Простоял долгие годы дом Константина. Вызывал он недоуменные взгляды проезжавших мимо, своей нелепостью. Сейчас доживает последние годы с провалившейся кровлей, с занесенным снегом жилым помещением. Не остался у семьи и дом Ивана, отошёл чужим людям. Стоит, сделанный на века, крепится. Я очень рада, что занялась исследованием жизни этих домов, оказавшихся когда-то одним большим домом. Порой я чувствовала, что и сами дома нуждались во мне. Они рассказывали наперебой свою грустную историю. Жаловались на тяжелую судьбу, разлучившую их на века. Заканчивая работу, я узнала от своих родных, что мой прадед дружил с Константином. Был он кузнецом и дверные кольца на дверях дома выковал, скорее всего, он. Работая над темой исследования, я пришла к выводу, что дома не были простыми сооружениями для людей. Они имели свою душу, жили, дышали вместе с хозяевами. Есть добротные дома, рассказывающие неспеша истории своих семей, а есть такие печальные как этот, разделённый на две части дом, потерявшийся в жестоком мире, холодный и одинокий брошенный дом.
