- •Архитектура Общественные здания. Кинотеатр
- •Графическая часть
- •Текстовая часть
- •1.4. Последовательность разработки курсового проекта (кп)
- •2. Методические рекомендации
- •2.1. Общие сведения о кинотеатрах
- •2.2. Генеральный план
- •2.3. Состав помещений, их взаимосвязь и нормы расчета площадей
- •Зрительский комплекс
- •Параметры зрительного зала и киноэкрана при кинодемонстрации
- •Киноаппаратный комплекс
- •Параметры кинопроекционной
- •Административно-хозяйственный комплекс
- •Функциональная схема кинотеатра
- •2.4. Конструктивные решения
- •2.5. Инженерное оборудование зданий кинотеатров
- •3. Графическая часть проекта
- •4. Пояснительная записка
- •4.9. Приложения
- •Литература
- •Содержание
4.9. Приложения
В приложении студент размещает расчет видимости зрительного зала, расчет времени эвакуации и расчет оптимального времени реверберации зала.
|
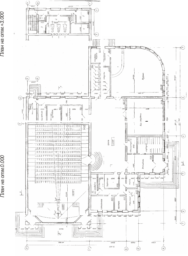
Рис.5. Пример выполнения планов кинотеатра |
|
Рис.6. Пример выполнения планов кинотеатра |
|
Рис. 7. Пример решения главного фасада кинотеатра. |
|
|||
|
Рис. 8. Пример решения главного фасада культурно-развлекательного центра. |
||||
ГЕНПЛАН
Рис. 10. Пример решения генерального плана кинотеатра в парковой зоне. |
|||||
ГЕНПЛАН
Рис. 9. Пример решения генерального плана кинотеатра на пересечении магистралей |
|||||
|
Рис. 11. Пример разработки продольного разреза кинотеатра. |
||||
|
Рис. 12. Пример разработки поперечнного разреза кинотеатра. |
||||
Рис. 13. Примеры выполнения плана плит перекрытия.
|
Рис. 14. Примеры выполнения разреза по наружной стене кинотеатра. |
Литература
1. Основы проектирования / Под ред. В.М. Предтеченского. 2-е изд., – М.: Стройиздат, 1976.
2. Ким, Н.Н. Архитектура промышленных и гражданских зданий. Специальный курс / Н.Н. Ким, Т.Г. Маклакова. – М.: Стройиздат, 1987.
3. СНиП 2.08.02-89*. Общественные здания и сооружения. – М.: Минстрой России, 1995. – 41 с.
4. СНиП 21-01-97*. Пожарная безопасность зданий и сооружений. – М.: Изд-во стандартов, 1998. – 23 с.
5. Пособие по проектированию общественных зданий и сооружений (к СНиП 2.08.02-89*). – М.: Стройиздат, 1988. – 56 с.
6. СНиП 2.07.01-89*. Градостроительство. Планировка и застройка городских и сельских поселений. – М.: Изд-во стандартов, 1990. – 70 с.
7. Архитектура гражданских и промышленных зданий: Учебник для вузов. В 5-ти т. / Моск. инж.-строит. ин-т им. В.В.Куйбышева. – М.: Стройиздат, 1977. Т.4. Общественные здания / Л.Б. Великовский, В.М. Предтеченский. Под общ. ред. В.М. Предтеченского – 239 с., ил.
8. Маклакова, Т.Г. Конструкции гражданских зданий / Т.Г. Маклакова, С.М. Нанасова. – М., 2000.
Содержание
1. Задание 3
1.1. Цель и задачи проекта 3
1.2. Содержание задания 3
1.3. Состав проекта 3
1.4. Последовательность разработки курсового проекта (КП) 4
2. Методические рекомендации 4
2.1. Общие сведения о кинотеатрах 4
2.2. Генеральный план 5
2.3. Состав помещений, их взаимосвязь и нормы расчета площадей 5
2.4. Конструктивные решения 11
2.5. Инженерное оборудование зданий кинотеатров 13
3. Графическая часть проекта 13
4. Пояснительная записка 14
4.1. Исходные данные 14
4.2. Генеральный план 14
4.3. Объемно-планировочное решение 15
4.4. Конструктивное решение 15
4.5. Архитектурно-художественное решение 15
4.6. Санитарно-техническое и инженерное оборудование 15
4.7. Технико-экономические показатели 15
4.8. Правила подсчета нормируемой, полезной, общей площади, строительного объема, площади застройки проектируемого здания 16
4.9. Приложения 16
Литература 27
|
|
|
|
|
|
|
|
|
|
|
|
|
|
|
|
|
|
|
|
|
|
|
|
|
|
|
|
|
|
|
|
|
|
|
|
|
|
|
|
|
|
