- •Методические указания для курсового проекта Компоновка стального каркаса здания
- •Расчет поперечной рамы. Расчетная схема поперечной рамы
- •Нагрузки на поперечную раму.
- •Нагрузка от подвесных кранов
- •− Вес тележки крана;
- •Статический расчет поперечной рамы
- •9. Расчет и конструирование элементов рамы.
- •− Усилия в опорном сечении ригеля;
- •− Расчетное сопротивление материала стенки срезу.
- •10. Расчет и конструирование узлов рамы
- •Расчет фланцевого соединения карнизного узла рамы
- •Предельное усилие, воспринимаемое болтами верхнего пояса
- •Рекомендуемые (минимальные) размеры привязок осей болтов
Методические указания для курсового проекта Компоновка стального каркаса здания
Общие требования компоновки каркаса.
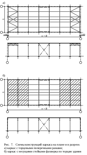
Основными элементами каркаса являются поперечные рамы, подстропильные конструкции, связи, конструкции торцевого фахверка и другие элементы, обеспечивающие прочность и устойчивость здания при воздействии на него всего комплекса нагрузок. Взаимная увязка элементов каркаса, их размеры, форма сечений и конструктивные схемы следует выбирать, руководствуясь требованиями прочности, надежности и экономичности принятых решений. С учетом специфики проектируемого в курсовом проекте здания (небольшие пролеты, наличие подвесных кранов сравнительно небольшой грузоподъемности и т.п.) при компоновке каркаса рекомендуется придерживаться следующих требований:
в кровле и стенах использовать легкие ограждающие конструкции;
шаг поперечных рам не более 6 м;
в поперечных рамах применять преимущественно элементы сплошного сечения из прокатных профилей; при достаточном обосновании возможно применение сквозного ригеля рамы;
для обеспечения жесткости покрытия рекомендуется включать в работу каркаса профилированные листы кровли.
Характерные планировочные схемы металлических конструкций однопролетного одноэтажного здания производственного назначения представлены на рис. 7. При проектировании каркасов зданий с более сложной конструктивной схемой (наличие двух и более пролетов и этажей, наличие разновысотных участков покрытия, усложненной конфигурации кровли и др.) необходимо учитывать индивидуальные особенности проектируемого здания.
Компоновка поперечной рамы.
Основными
исходными геометрическими параметрами
поперечной рамы с подвесными кранами
является пролет (
)
и полезная высота производственного
помещения (H0),
(Рис. 8). Для определения вертикальных
размеров рамы необходимо задаться
заглублением плиты базы колонны (
)
и высотой сечения ригеля (
).
Параметр принимается в зависимости от конструкции базы. Если база колонны проектируется с траверсами, имеющими вертикальный размер порядка 300-400мм, то для того, чтобы конструкции базы не мешали производственному процессу, их необходимо заглубить ниже отметки пола. В этом случае = 400...500 мм. Для конструкции базы без траверсы при тех же технологических требованиях = 150-200 мм.
Высота сечения ригеля зависит главным образом от нагрузки на ригель, его пролета, конструктивной формы и конструкции карнизного узла. При жестком сопряжении ригеля со стойкой предварительно можно принять:
для ригелей сплошного сечения = (1/25... 1/30) ,
для сквозных ригелей = (1/15 ... 1/20) .
Для
обеспечения необходимой жесткости
поперечной рамы ее стойки должны иметь
высоту сечения bk
= (1/15....1/20)
.
По результатам окончательного расчета ригеля и стойки параметры и bk могут быть откорректированы.
При компоновке поперечной рамы необходимо установить габаритные размеры подвесного крана по техническим условиям на краны. Длина крана определяется из условия обеспечения доставки транспортируемых краном грузов в любую точку по ширине обслуживаемой им производственной зоны. При этом внутренние габариты поперечной рамы не должны создавать помех для перемещения крана вдоль пролета. Длину крана с учетом обеспечения максимальной ширины обслуживаемой производственной зоны можно определить следующим образом:
− технологический
зазор
Необходимые геометрические параметры крана устанавливаются по таблице П18 в зависимости от грузоподъемности крана.
