Расчет и конструирование подкрановой балки.
Расчет подкрановых балок во многом аналогичен расчету обычных балок. Однако подвижная крановая нагрузка, являясь динамической и многократно повторяющейся, приводит к ряду особенностей расчета.
Расчетные усилия (максимальные изгибающие моменты и поперечные силы) в подкрановых балках находят от нагрузки двух сближенных кранов наибольшей грузоподъемности.
Предельно допустимый прогиб подкрановых балок:
[f/l]=1/600 – для кранов групп режимов работы 8К;
[f/l]=1/500 – для кранов групп режимов работы 7К;
[f/l]=1/400 – для кранов групп режимов работы 1К-6К.
Исходные
данные.Требуется
рассчитать подкрановую балку пролетом
12 м под два крана грузоподъемностью
Qкр=
490 кН однопролетного производственного
здания. Режим работы кранов – 6К (средний).
Пролет здания 24 м. Материал балки –
сталь С345;
(при t≤20мм);
Rs=180Мпа.
Нагрузки на подкрановую балку. По прил. 1(1) для крана Qкр= 490 кН режима работы 6К нормативное вертикальное усилие на колесе:
Для кранов режима работы 1К-6К с гибким подвесом груза нормативное поперечное горизонтальное усилия на колесе:
Определение
расчетных усилий. Определим
расчетный изгибающий момент
от
воздействия вертикальной крановой
нагрузки.
Допуская, что сечение с максимальным
изгибающим моментом расположено в
середине пролета балки и пользуясь
линией влияния момента в этом сечении,
устанавливаем краны не выгоднейшим
образом.
Рис. 11
Расчетный момент от вертикальной нагрузки:
где,
коэффициент надежности по крановой
нагрузке;
– коэффициент сочетания крановых нагрузок. При учете 2-х кранов групп режимов работы 1К-6К = 0,85.
= 1,1 –
коэффциент динамичности к вертикальным
нагрузкам для подкрановых балок ;
α = 1,05 – учитывает влияние собственного веса подкрановых конструкций и временной нагрузки на тормозной площадке;
= 0,95 –
коэффициент надежности по ответственности.
– ординаты линий
влияния
Расчетный момент от горизонтальной крановой нагрузки:
где
=1 – коэффициент динамичности к
горизонтальным нагрузкам
Для определения максимальной поперечной силы загружаем линию влияния поперечной силы на опоре.
Рис. 12
Расчетные значения поперечных сил на опоре балки от вертикальной и горизонтальной нагрузок:
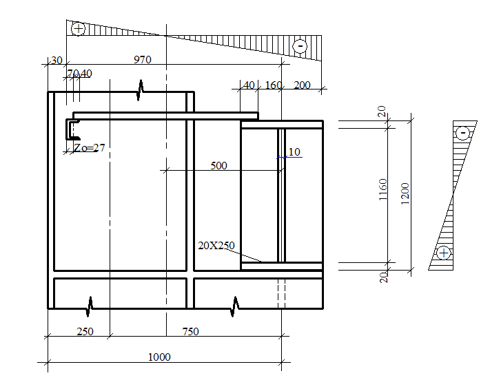
Подбор сечения балки. Подкрановую балку принимаем симметричного сечения с тормозной конструкцией в виде листа из рифленой стали толщиной t = 6мм и швеллера №36 (при шаге рам 6 м можно принимать швеллер №16-18, а при шаге 12 м – швеллер № 36).
Условие прочности в наиболее напряженной точке «А» сечения:
гдеβ – коэффициент, учитывающий влияние горизонтальных поперечных нагрузок на напряжение в верхнем поясе подкрановой балки
где
м
– высота балки, ее можно принимать в
пределах (1/6 ... 1/10)
;
hт=
hн
= 1 м – ширина сечения тормозной
конструкции.
Сумма
ординат линии влияния при нагрузке от
одного крана
.
т.к для кранов группы режима работы 6К [f/l]=1/400
Оптимальная высота порасходу стали:
По
табл. 7.2 (1) задаемся гибкостью стенки
балки
Принимаем һб = 120 см (кратной 10 см).
Задаемся толщиной полок балки tf = 2,0 см, тогда высота стенки:
Толщина стенки
из условия сопротивления срезу силой
где
Принимаем
tw=10мм,
при этом
Размеры поясных листов определим по формулам:
см4
Требуемая площадь поясов:
bf = Af, тр / tf= 42,55/ 2 = 21,27 см.
Принимаем пояс из стального листа сечением 20х250 мм. Af = 50 см2.
Устойчивость сжатого пояса обеспечена, т.к
Отношение bf / һб = 25/ 120 = 1/4,8находится в рекомендуемых пределах (bf / һб = 1 / 2... 1/5).
Площадь сечения подкрановой балки:
А = 2 Аf + Аw = 2 · 80 + 136 · 1,2 = 323,2 см2.
Проверка прочности сечения
Рис. 13
Геометрические характеристики подкрановой балки относительно оси х-х:
Геометрические характеристики тормозной балки относительно оси у-у (в состав тормозной балки входят верхний пояс подкрановой балки, тормозной лист и швеллер); площадь поперечного сечения швеллера №36 А = 53,4 см2; ширина тормозного листа 970-70 – 160 = 740 мм.
Расстояние от оси подкрановой балки до центра тяжести сечения:
Расстояние от центра тяжести сечения до наиболее напряженной точки «А» верхнего пояса подкрановой балки:
хА = х0 + bf / 2 = 50 + 12,5 = 62,5 см.
Проверим нормальное напряжение в верхнем поясе (в точке А) подкрановой балки:
Проверка прогиба подкрановой балки и прочности стенки на действие касательных напряжений на опоре не нужны, т.к высота балки на опоре һббольше минимального значения һmin; принятая толщина стенки больше толщины определенной из условия среза.
