- •Паспортные данные
- •1.Объясните устройство, элементы конструкции и принцип действия синхронного двигателя.
- •3. Может ли явнополюсный синхронный двигатель работать при отсутствии возбуждения?
- •5. Объясните по схеме, как определяются V-образные характеристики синхронного двигателя. Поясните ход этих характеристик.
- •7. С каким коэффициентом мощности работает синхронный двигатель при нормальном возбуждении?
- •11. В чем преимущества синхронного двигателя по сравнению с асинхронным двигателем? Каковы его недостатки?
МИНОБРНАУКИ РОССИИ
федеральное государственное бюджетное образовательное учреждение
высшего образования
«Самарский государственный технический университет»
(ФГБОУ ВО «СамГТУ»)
Кафедра «Электромеханика и автомобильное электрооборудование»
Лабораторная работа №3
«Исследование синхронного двигателя»
Выполнил:
студент 3-ЭТФ-101 В.Н. Безъязыков
Принял:
доцент., к.т.н Д.Г. Рандин
Самара 2024
Цель работы - овладение практическими навыками экспериментального определения угловых, V-образных, рабочих характеристик синхронного двигателя и оценки потребительских свойств этого двигателя.
Программа работы
Изучить устройство и принцип действия синхронного двигателя.
1. Осуществить асинхронный пуск в ход двигателя под нагрузкой.
2. Осуществить регулирование активной мощности синхронного двигателя.
3. Определить рабочую характеристику двигателя.
Таблица 1
Паспортные данные
Синхронная машина |
|
Номинальная активная мощность, Вт |
100 |
Номинальное напряжение, В |
230 |
Схема соединения обмоток статора |
Y |
cosϕN |
1 |
Номинальный ток статора, А |
0,26 |
Ток возбуждения холостого хода, А |
1.6 |
Номинальное напряжение возбуждения, В |
22 |
Номинальный ток возбуждения, А |
1,85 |
Направление вращения |
любое |
Номинальная частота вращения, об/мин |
1500 |
Сопротивление обмотки возбуждения, Ом |
12.2 |
Машина постоянного тога (тип 101.2) |
|
Номинальная мощность, Вт |
90 |
Номинальное напряжение якоря, В |
220 |
Номинальный ток якоря, А |
0,56 |
Номинальная частота вращения, мин |
1500 |
Возбуждение |
Независимое / параллельное/ последовательное |
Номинальное напряжение возбуждения, В |
220 |
Номинальный ток обмотки возбуждения. А |
0.2 |
КПД, % |
57.2 |
Направление вращения |
реверсивное |
Режим работы |
Двигательный/генераторный |
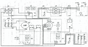
1. Асинхронный пуск синхронного двигателя.
Рис. 1. Электрическая схема соединений для асинхронного пуска.
Таблица 2
Перечень аппаратуры
Обозначение |
Наименование |
Тип |
Параметры |
G1 |
Трехфазный источник питания |
201.2 |
⁓400 В/ 16 А |
G2 |
Источник питания двигателя постоянного тока |
206.1 |
- 0...250 В / 3 А (якорь) / - 200 В /1 А (возбуждение) |
G3 |
Возбудитель синхронной машины |
209.2 |
- 0...40 В / 3,5 А |
G4 |
Машина постоянного тока |
101.2 |
90 Вт/220 В/ 0,56 А (якорь) / 2x110 В/0,25 А (возбуждение) |
G5 |
Преобразователь угловых перемещений |
104 |
6 вых. каналов / 2500 импульсов за оборот |
M1 |
Машина переменного тока |
102.1 |
100 Вт/⁓230 В/ 1500 мин |
А2 |
Трёхфазная трансформаторная группа |
347.1 |
3x80 В•А; 230 В/242,235, 230,226,220, 133,127 В |
А6, A8 |
Трехполюсный выключатель |
301.1 |
-400 В/10 А |
А9 |
Реостат для цепи ротора машины переменного тока |
307.1 |
3x0…40 Ом/1 А |
A10 |
Активная нагрузка |
306.1 |
220 В / 3x0…50 Вт |
А12 |
Блок датчиков тока и напряжения |
402.3 |
3 датчика напряжения ±100; 1000 В / ±5 В; 3 датчика тока ±1; 5 A/ ±5 В |
А14 |
Линейный реактор |
314.2 |
3x0,3 Гн/0,5 А |
РЗ |
Указатель частоты вращения |
506.2 |
-2000...0...2000 об/мин |
В ходе работы была собрана схема, представленная на рис. 1. Список используемой аппаратуры представлен в таблице 2. Произведен асинхронный пуск синхронного двигателя. Асинхронный пуск синхронного электродвигателя включает в себя использование дополнительной короткозамкнутой обмотки в полюсных наконечниках ротора. Невозбужденный синхронный двигатель включают в сеть, Возникающее при этом вращающееся магнитное поле статора наводит в стержнях пусковой клетки ЭДС, которые создают токи I2. Взаимодействие этих токов с полем статора вызывает появление на стержнях пусковой клетки электромагнитных сил. Под действием этих сил ротор приводится во вращение. После разгона ротора до частоты вращения, близкой к синхронной, обмотку возбуждения подключают к источнику постоянного тока. Образующийся при этом синхронный момент втягивает ротор двигателя в синхронизм.
Вывод: метод асинхронного пуска на сегодня самый распространенный. Его преимущество состоит в том, что нет необходимости в дополнительном разгонном двигателе, так как дополнительно к обмотке возбуждения в ротор вмонтированы короткозамкнутые стержни беличьей клетки, что дало возможность запускать двигатель в асинхронном режиме. Недостатком асинхронного пуска является большой пусковой ток (в 5—7 раз больший рабочего тока). Пусковой ток вызывает падение напряжения в сети, а это отражается на работе других потребителей.
2. Регулирование активной мощности двигателя.
Рис.2. Электрическая схема соединений для опыта регулирования активной мощности.
Таблица 3
Перечень аппаратуры
Обозначение |
Наименование |
Тип |
Параметры |
G1 |
Трехфазный источник питания |
201.2 |
⁓400 В/ 16 А |
G2 |
Источник питания двигателя постоянного тока |
206.1 |
- 0...250 В / 3 А (якорь) / - 200 В /1 А (возбуждение) |
G3 |
Возбудитель синхронной машины |
209.2 |
- 0...40 В / 3,5 А |
G4 |
Машина постоянного тока |
101.2 |
90 Вт/220 В/ 0,56 А (якорь) / 2x110 В/0,25 А (возбуждение) |
G5 |
Преобразователь угловых перемещений |
104 |
6 вых. каналов / 2500 импульсов за оборот |
M1 |
Машина переменного тока |
102.1 |
100 Вт/⁓230 В/ 1500 мин |
А2 |
Трёхфазная трансформаторная группа |
347.1 |
3x80 В•А; 230 В/242,235, 230,226,220, 133,127 В |
А6, A8 |
Трехполюсный выключатель |
301.1 |
-400 В/10 А |
А9 |
Реостат для цепи ротора машины переменного тока |
307.1 |
3x0…40 Ом/1 А |
A10 |
Активная нагрузка |
306.1 |
220 В / 3x0…50 Вт |
А14 |
Линейный реактор |
314.2 |
3x0,3 Гн/0,5 А |
Р1 |
Блок мультиметров |
508.2 |
3 мультиметра ≈ 0... 1000 В / ≈0...10 А / 0...20 МОм |
Р2 |
Измеритель мощностей |
507.2 |
15; 60; 150; 300; 600 В/ 0,05; 0,1; 0,2; 0,5 А. |
РЗ |
Указатель частоты вращения |
506.2 |
-2000...0...2000 об/мин |
Р5 |
Указатель угла нагрузки синхронной машины |
505.2 |
-180°…0…180° |
В ходе работы была собрана схема, представленная на рис. 2. Список используемой аппаратуры представлен в таблице 3. Снятые опытные данные, приведены в таблице 4.
Таблица 4
θ, град |
0 |
-5 |
-9 |
-17 |
-24 |
-29 |
P1, Вт |
4 |
14 |
20 |
29 |
35 |
40 |
I1, A |
0,08 |
0,1 |
0,15 |
0,2 |
0,25 |
0,3 |
Q1, вар |
2 |
4 |
4 |
6 |
4 |
6 |
cosϕ |
0,89 |
0,96 |
0,98 |
0,98 |
0,99 |
0,99 |
Вывод: при увеличении механического момента сопротивления возрастает угол нагрузки, увеличивается мощность на валу двигателя и электроэнергия, потребляемая им из сети. При этом скорость вращения ротора остаётся постоянной.
3. Определение рабочей характеристики I1, P, M, η, соsϕ= f(P2) при U=230 В, f=50 Гц, If=1,8 А=соnst трехфазного синхронного двигателя.
Рис.3. Электрическая схема соединений для определения рабочих характеристик.
Таблица 5
Перечень аппаратуры
Обозначение |
Наименование |
Тип |
Параметры |
G1 |
Трехфазный источник питания |
201.2 |
⁓400 В/ 16 А |
G2 |
Источник питания двигателя постоянного тока |
206.1 |
- 0...250 В / 3 А (якорь) / - 200 В /1 А (возбуждение) |
G3 |
Возбудитель синхронной машины |
209.2 |
- 0...40 В / 3,5 А |
G4 |
Машина постоянного тока |
101.2 |
90 Вт/220 В/ 0,56 А (якорь) / 2x110 В/0,25 А (возбуждение) |
G5 |
Преобразователь угловых перемещений |
104 |
6 вых. каналов / 2500 импульсов за оборот |
M1 |
Машина переменного тока |
102.1 |
100 Вт/⁓230 В/ 1500 мин |
А2 |
Трёхфазная трансформаторная группа |
347.1 |
3x80 В•А; 230 В/242,235, 230,226,220, 133,127 В |
А6, A8 |
Трехполюсный выключатель |
301.1 |
-400 В/10 А |
А9 |
Реостат для цепи ротора машины переменного тока |
307.1 |
3x0…40 Ом/1 А |
A10 |
Активная нагрузка |
306.1 |
220 В / 3x0…50 Вт |
А14 |
Линейный реактор |
314.2 |
3x0,3 Гн/0,5 А |
Р1 |
Блок мультиметров |
508.2 |
3 мультиметра ≈ 0... 1000 В / ≈0...10 А / 0...20 МОм |
Р2 |
Измеритель мощностей |
507.2 |
15; 60; 150; 300; 600 В/ 0,05; 0,1; 0,2; 0,5 А. |
РЗ |
Указатель частоты вращения |
506.2 |
-2000...0...2000 об/мин |
В ходе работы была собрана схема, представленная на рис. 3. Список используемой аппаратуры представлен в таблице 5. Снятые опытные данные, приведены в таблице 6.
Таблица 6
I1, А |
0,08 |
0,12 |
0,16 |
0,2 |
0,24 |
0,28 |
0,31 |
Iг, А |
0 |
0,2 |
0,29 |
0,35 |
0,39 |
0,43 |
0,45 |
Uг, В |
0 |
70 |
93 |
112 |
126 |
137 |
145 |
P1, Вт |
9 |
16 |
22 |
28 |
32 |
37 |
40 |
Q1, вар |
6 |
6 |
4 |
7 |
5 |
5 |
5 |
P2, Вт |
6 |
35 |
54,72 |
71,45 |
84,39 |
97,16 |
105 |
M, Нм |
0,04 |
0,22 |
0,35 |
0,46 |
0,54 |
0,62 |
0,67 |
cosϕ |
0,49 |
0,58 |
0,60 |
0,61 |
0,58 |
0,57 |
0,56 |
η |
0,09 |
0,40 |
0,52 |
0,58 |
0,62 |
0,65 |
0,66 |
Затем, опираясь на данные таблицы 6, были построены графики зависимости I1, P, M, η, соsϕ= f(P2) синхронного генератора.
Рис.4. Зависимость I1=f(P2). „•” — опытные данные, „—” — аппроксимирующая кривая (полиномиальная).
Рис.5. Зависимость P1=f(P2). „•” — опытные данные, „—” — аппроксимирующая кривая (полиномиальная).
Рис.6. Зависимость η=f(P2). „•” — опытные данные, „—” — аппроксимирующая кривая (полиномиальная).
Рис.7. Зависимость M=f(P2). „•” — опытные данные, „—” — аппроксимирующая кривая (полиномиальная).
Рис.8. Зависимость cosϕ=f(P2). „•” — опытные данные, „—” — аппроксимирующая кривая (полиномиальная).
Вывод: полезный момент на валу двигателя М2 = P2 /ω, а так как ω=const, то график М2=f(Р2) имеет вид прямой линии, выходящей из начала координат. Подведенная к двигателю мощность Р1 состоит из полезной мощности Р2 и суммы потерь. Так как потери в меди пропорциональны квадрату тока нагрузки, то кривая Р1=f(P2) несколько изогнута вверх, так как Р1 растет быстрее, чем Р2. С увеличением нагрузки cosϕ уменьшается, поэтому кривая cosϕ=f(Р2) слегка изогнута книзу. Величина тока I2 с увеличением нагрузки Р2 растет несколько быстрее, чем Р1, вследствие уменьшения cosϕ.
Контрольные вопросы.
