- •Вопрос 1.Объемный гидропривод. Элементы и параметры привода строительных машин.
- •Вопрос 2. Расчет производительности скрепера. Основные детали и способы разгрузки ковша. Три фазы заполнения ковша грунтом.
- •Вопрос 3. Цементовоз. Назначение и конструкция.
- •Вопрос 5. Виды рабочих органов экскаваторов. Области применения. Индексация экскаваторов.
- •Вопрос 6. Система классификации строительных машин
- •Вопрос 7. Тяговое усилие по номинальной мощности двигателя, тяговое усилие по условию сцепления
- •Вопрос 8. Виды стружки. Влияние формы стружки на сопротивление резанию грунтов.
- •Вопрос 9.Автогрейдер. Конструкция. Классификация. Назначение. Основные элементы рабочего оборудования.
- •10. Бульдозер с неповоротным отвалом. Конструкция, параметры отвала. Общее сопротивление грунта при работе.
- •11. Общее сопротивление при работе землеройных машин.
- •12. Бульдозер с поворотным отвалом. Конструкция, параметры отвала. Общее сопротивление грунта при работе.
- •13. Кусторез, корчеватель, рыхлитель. Назначение, конструкция. Рабочее оборудование.
- •14. Трамбующие машины. Рабочие органы и режим работы. Производительность.
- •15. Передачи привода рабочих органов строительных машин. Краткий сравнительный анализ.
- •17. Виды дробильного оборудования нерудных каменных пород. Режимы работы. Принцип выбора дробильного оборудования. Коэффициент измельчения.
- •18. Парк строительных машин, классификация по назначению и режиму работы. Основные и дополнительные рабочие органы.
- •28. Штукатурные станции. Назначение, устройство, основные параметры, область применения.
- •29. Силовое оборудование строительных машин.
- •30. Состав и виды силовой передачи строительных машин.
- •31. Пневматический транспорт. Принцип действия оборудования. Назначение и применение в строительстве.
- •32.Автобетоносмесители. Автобетоновозы. Авторастворовозы. Бетононасосы, растворонасосы. Принцип действия и применение в строительстве.
- •34. Специальные узлы и детали строительных машин . Канаты, блоки, барабаны, полиспасты. Назначения, конструкция, область применения, определяемые параметры, предъявляемые требования.
- •35. Силовое и ходовое оборудование строительных машин различного назначения.
- •36. Системы управления строительных машин. Назначение, конструктивные признаки.
- •39. Специализированные транспортные средства. Конструктивные особенности.
- •Устройство башенного крана
- •43. Система индексации строительных башенных кранов кб.
- •44. Строительный башенный кран, составные части.
- •45. Самоподъемные башенные краны. Назначение, составные части, область применения.
- •46. Стреловые самоходные краны. Классификация. Индексация, основные виды стрелового оборудования. Основные параметры.
- •47. Козловые краны. Назначение. Устройство, область применения. Основные параметры.
- •48. Открытый водоотлив. Назначение, оборудование, область применения.
- •49. Экскаватор с телескопическим рабочим оборудованием. Назначение, основные части, сменные рабочие органы, область применения.
- •50. Траншейные экскаваторы. Назначение, область применения. Типы рабочих органов. Способы соединения рабочего оборудования с базовой машиной. Тип ходовых устройств и приводов.
- •51. Бурильно-крановые машины. Назначение, основные части, рабочие органы, область применения
- •52. Свайные молоты. Назначение, основные части, рабочий орган, основные параметры, виды используемой энергии.
- •53. Копры и самоходные копровые установки. Назначение, устройство.
- •54. Машины для приготовления бетонных и растворных смесей. Классификация.
- •55. Машины для укладки и уплотнения бетонных смесей. Назначение, основные части, конструктивное исполнение рабочего органа, силовая установка.
- •56. Окрасочные агрегаты высокого давления. Назначение, основные узлы, достоинства и недостатки.
- •57. Машины для устройства и отделки полов. Виды выполняемых работ.
- •58. Машины для кровельных работ. Технология использования. Рабочие органы.
- •59. Ручные машины. Классификация.
35. Силовое и ходовое оборудование строительных машин различного назначения.
36. Системы управления строительных машин. Назначение, конструктивные признаки.
Системы управления предназначены для периодического включения и выключения различных механизмов машины (муфт, фрикционов, тормозов, рулевого управления и др.).
По назначению они могут быть разделены на следующие системы: а) управления установкой рабочего органа (например, опускание и подъем отвала бульдозера или ковша скрепера, поворот отвала автогрейдера); б) управления муфтами и тормозами; в) рулевого управления; г) управления двигателем.
В зависимости от конструктивного выполнения различают системы управления: а) механические — редукторные или рычажные; б) канатно-блочные; в) гидравлические; г) пневматические; д) электрические (гидравлические, пневматические и электрические управления могут быть снабжены системами следящего действия); е) комбинированные (гидромеханические, электропневматические и т. п.).
По степени автоматизации:
а) неавтоматизированные или эрготические;
б) полуатоматизированные;
в) автоматические.
Система управления строймашинами состоит из:
пульта управления с приборами на нем;
рукоятей;
педалей;
кнопок;
системы передач в виде рычагов, тяг, золотников, трубопроводов;
доп. устройств для контроля двигателя, механизмов привода, рабочего привода.
Система управления существенно влияет на производительность машины и на утомляемость оператора.
В навесных и прицепных машинах наибольшее распространение имеют канатно-блочные и гидравлические системы; в самоходных машинах — редукторные и гидравлические. В настоящее время в отечественном и зарубежном дорожном машиностроении все более широкое распространение получают гидравлические системы управления. Операции, выполняемые системой управления при включении узлов трансмиссии (муфт, тормозов) и рулевого управления, являются не энергоемкими и практически не влияют на общий баланс мощности. В то же время такие операции как опускание и подъем рабочего органа (отвала бульдозера или ковша скрепера и др.) более энергоемки и к тому же они по времени совпадают с максимальным использованием мощности двигателя при вы: полнении машиной основных технологических процессов. Поэтому возможность совмещения этих операций должна быть проверена по балансу мощности. Основными параметрами систем управления рабочими органами являются: величина усилия, развиваемая на рабочем органе, скорость движения рабочего органа, число включений в час, продолжительность работы в течение цикла, к. п. д. системы управления и быстрота срабатывания. Быстрота срабатывания механизма управления характеризуется временем запаздывания включения управляемого механизма.
Редукторная
система управления с приводом от
двигателя
применяется на таких землеройно-транспортных
машинах, как автогрейдеры и грейдер-элеватор,
а в других машинах эта система практически
применения не нашла. Кинематическая
схема этой системы управления показана
на рисунке. В этих системах применяются
червячные, цилиндрические и планетарные
редукторы. Наибольшее распространение
получили червячные редукторы с
самотормозящейся червячной парой. Они
обеспечивают фиксацию рабочего органа.
При передаче мощности от одного двигателя
редукторная система управления
выполняется с разветвлением мощности.
Схема редукторной системы управления:
1
— двигатель; 2 — механизм реверса; 3 —
карданный вал; 4 — редуктор
Канатно-блочная система управления применяется на скреперах, бульдозерах и на различном навесном тракторном оборудовании (кусторезах, корчевателях и т. п.). Основными частями этой системы управления являются: лебедка, тормоз, направляющие блоки и канатный полиспаст.
Редуцирующим звеном, вместо канатного полиспаста, может служить зубчатый редуктор. Достоинством канатно-блочной системы управления является простота конструкции, а недостатком — громоздкость, низкий к. п. д., а также невозможность принудительного заглубления рабочих органов. В зависимости от числа управляемых частей рабочего органа применяются один, два или три каната. Соответственно и лебедка может иметь один, два или три барабана. К. п. д. лебедок зависит от конструктивной схемы и качества их изготовления и колеблется в пределах 0,75—0,25.
Гидравлическая система управления применяется в дорожных машинах для воздействия на муфты, фрикционы, тормоза и рулевые устройства. Гидравлические системы управления получают все большее распространение благодаря своим преимуществам по сравнению с канатно-блочной и редукторной системами. К преимуществам относятся: независимость относительного расположения агрегатов; легкость включения и выключения; возможность обеспечения большого передаточного отношения; наличие устройств, предохраняющих систему от перегрузов; возможность сравнительно простого осуществления автоматических следящих устройств.
Недостатком гидросистемы управления является то, что ее работа в некоторой степени зависит от температуры окружающего воздуха; кроме того, отдельные узлы и детали требуют высококачественной технологической обработки и соответствующего обслуживания в эксплуатации. Полный к. п. д. гидросистемы доходит до 0,85—0,92. Гидравлические системы управления делят на насосные и безнасосные. В насосной системе насос приводится в действие от общего двигателя машины или от отдельного двигателя.
Схема насосной системы гидравлического управления
Рабочая
жидкость, поступающая из масляного
бака, нагнетается насосом через обратный
клапан в аккумулятор, одновременно
жидкость подводится к золотникам
распределителя. После того как давление
в аккумуляторе достигает рабочего,
автоматически открывается клапан-пилот
и жидкость без давления сливается в
бак. Этим осуществляется разгрузка
насоса и уменьшается его износ.
Безнасосные системы управления просты по конструкции, отличаются большой надежностью и долговечностью, применяются в основном для маломощных машин и механизмов. Здесь давление в сети создается мускульным усилием оператора, что ограничивает область применения безнасосного гидравлического управления. При нажатии на педаль рабочая жидкость, находящаяся в цилиндре-датчике, через трубопровод вытесняется в рабочий цилиндр, поршень которого связан с исполнительным механизмом. Утечки жидкости пополняются из бачка. Обратный клапан предотвращает возврат жидкости из цилиндра обратно в бачок. Безнасосное гидравлическое управление является более быстродействующим, чем рычажное или пневматическое, так как обладает большей жесткостью, чем пневматическое, и кинематика его более проста, чем у рычажного
Безнасосная
гидравлическая система
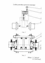
Пневматическая система управления отличается от гидравлической насосной тем, что в ней вместо жидкости используется сжатый до 0,7…0,8 МПа в компрессоре воздух. Исполнительными органами такой системы являются пнев-моцилиндры и пневмокамеры одностороннего действия, подвижные элементы которых — поршень или диафрагма со штоком — передают усилие включаемому механизму.
Схема пневматического управления
Возврат штока в исходное положение обеспечивается пружиной при снятом давлении. Работой пневмоцилиндров и камер управляют с помощью регулируемых и нерегулируемых пневмоаппаратов 3. Нерегулируемый крановый пнев-моаппарат соединяет ресивер компрессора с рабочей полостью пневмоцилиндра (камеры) без изменения давления сжатого воздуха. Регулируемый пневмоаппарат позволяет изменять давление воздуха в исполнительном органе, обеспечивая повышенную плавность включения механизма. По сравнению с гидравлической пневматическая система управления обеспечивает более высокую плавность включения. Основные ее недостатки — сравнительно большие размеры исполнительных органов из-за низкого давления в системе и возможность замерзания конденсата, содержащегося в сжатом воздухе.
Электрическая система управления применяется в машинах с индивидуальным электрическим приводом механизмов и обеспечивает пуск и останов электродвигателей, регулирование частоты и вращения, реверсирование, безопасную работу и т.п. В состав такой системы входят магнитные пускатели, контроллеры, реле различных типов, автоматические выключатели, кнопки управления «Пуск» и «Стоп», блокирующие устройства, тормозные электромагниты и т.п. Электрические системы управления надежны, просты и удобны в эксплуатации, обеспечивают дистанционное управление механизмами и всей машиной в целом, создают возможность автоматизации работы машин.
С целью частичной или полной автоматизации управления машинами применяют комбинированные системы — гидропневматические, гидроэлектрические, гидропневмоэлектрические и т.п.
Билет 37. Грузовые автомобили, тракторы, пневмоколесные тягачи. Назначение, классификация, основные части, силовая установка.
Грузовые автомобили.
1. Назначение: Грузовой автомобиль – автомобиль, предназначенный для перевозки грузов.
2. Классификация:
а)По типу кузова:
закрытый тип
контейнер
тентованный
рефрижератор (изотермический кузов)
изотермический фургон
микроавтобус
открытый тип
бортовой
самосвал
конт. площадка
кран
автотранспортер
цистерна
лесовоз
седельный тягач
б) По группам:
I группа бортовые автомобили (автомобили-фургоны общего назначения)
II группа специализированные (самосвалы, фургоны, рефрижераторы, контейнеровозы, седельные тягачи с полуприцепами, балластные тягачи с прицепами)
III группа (условно) автомобили-цистерны
в) По количеству осей:
двухосные
трехосные
четырехосные
пятиосные и более
г) По осевым нагрузкам (на наиболее нагруженную ось):
до 6 т включительно
свыше 6 т до 10 т включительно
д) По колесной формуле
4х2
4х4
6х4
6х6
е) По составу:
одиночное транспортное средство
автопоезд в составе:
автомобиль-прицеп
автомобиль-полуприцеп
ж) По типу двигателя:
бензиновые
дизельные
з) По грузоподъемности
малой
средней
большой
от 1,5 до 16 тонн
свыше 16 тонн
3. Основные части.
Независимо от особенностей конструкции автомобиль состоит из трех основных частей:
двигателя
кузова
шасси
Двигатель — источник механической энергии, необходимый для движения автомобиля. В двигателе внутреннего сгорания тепловая энергия, получаемая при сгорании топлива в его цилиндрах, преобразуется в механическую работу.
На автомобилях применяются двигатели внутреннего сгорания с искровым зажиганием и с самовоспламенением, а также электрические.
Кузов — часть автомобиля, предназначенная для размещения груза или для размещения водителя и пассажиров. Кузов состоит из кабины 1 и грузовой платформы 2. К нему относят также капот, облицовку и крылья.
Шасси — опорное устройство, необходимое для передвижения автомобиля. В шасси входят все механизмы и агрегаты, предназначенные для передачи усилия от двигателя на ведущие колеса, а также для управления и передвижения автомобиля.
Шасси включает в себя:
трансмиссию
ходовую часть
рулевое управление
тормозную систему
Трансмиссия представляет собой совокупность механизмов, передающих вращающий момент от коленчатого вала двигателя к ведущим колесам, а также изменяющих вращающий момент и частоту вращения ведущих колес по величине и направлению.
Трансмиссия состоит из:
сцепления 3
коробки передач 4
карданной передачи 5
ведущего моста 6
Рис. Составные части автомобиля: 1 — кабина; 2 — грузовая платформа; 3 — сцепление; 4 — коробка передач; 5 — карданная передача; 6 — ведущий мост.
Сцепление необходимо для кратковременного разъединения двигателя и трансмиссии при переключении передач и для плавного их соединения при трогании с места.
Коробка передач (КП) предназначена для изменения вращающего момента на ведущих колесах, скорости и направления движения автомобиля путем ввода в зацепление различных пар шестерен.
Карданная передача служит для передачи вращения от вала коробки передач к ведущему мосту под некоторым углом.
Ведущий мост состоит из механизмов, с помощью которых происходит увеличение вращающего момента и вращение валов передается к ведущим колесам под прямым углом.
Ходовая часть предназначена для передвижения автомобиля. Вращательное движение ведущих колес при их сцеплении с поверхностью грунта преобразуется в поступательное движение автомобиля.
Рулевое управление необходимо для изменения направления движения автомобиля.
Тормозная система служит для замедления скорости движения и остановки автомобиля.
4. Силовая установка.
Силовая установка — это та часть машины, которая приводит в движение механизмы машины. Она состоит из двигателя, системы охлаждения этого двигателя (радиатор, водяная система, трубопроводы); если двигатель внутреннего сгорания, то системы питания (топливной системы) и системы регулирования двигателя. В силовую установку входит также подмоторная рама. Силовые установки машин, предназначенных для работы в районах со специфическими климатическими условиями (пустыни, районы с господствующими отрицательными температурами), оборудуются фильтрами, подогревателями и другими специальными устройствами.
Рис.
2.2. Кинематические схемы грузовых
автомобилей: а — нормальной проходимости;
б — повышенной проходимости
Трансмиссия (рис. 2.2) передает крутящий момент от вала двигателя 2 к ведущим колесам 8, а также приводит в действие различное оборудование, смонтированное на автомобиле.
В нее входят: 1) постояннозамкнутая дисковая фрикционная муфта (сцепление), служащая для плавного соединения и быстрого разъединения работающего двигателя с трансмиссией; 2) ступенчатая коробка передач, которая выполнена в виде зубчатого редуктора с переменным передаточным числом и предназначена для изменения величины крутящего момента, подводимого к ведущим колесам в зависимости от условий движения, обеспечения движения автомобиля задним ходом и разъединения работающего двигателя с трансмиссией при длительных остановках машины; 3) карданные валы, передающие крутящий момент под меняющимся углом от коробки передач, укрепленной на раме, к подрессоренному заднему мосту; 4) главная передача (одинарная или двойная), увеличивающая тяговую силу на ведущих колесах; 5) дифференциал, служащий для распределения крутящего момента между ведущими колесами и обеспечивающий их вращение с различными угловыми скоростями при движении автомобиля на поворотах и по неровной поверхности; 6) полуоси (валы) , передающие крутящий момент к закрепленным на них ведущим колесам; главная передача, дифференциал и полуоси, заключенные в кожух, называются задним ведущим мостом.
Тракторы.
1. Назначение: Трактор - самодвижущаяся (гусеничная или колёсная) машина, выполняющая сельскохозяйственные, дорожно-строительные, землеройные, транспортные и другие работы в агрегате с прицепными, навесными или стационарными машинами (орудиями). Отличается низкой скоростью и большой силой тяги. Широко применяется в сельском хозяйстве для пахоты и перемещения несамоходных машин и орудий, как правило оборудуется съемным или несъемным навесным и полунавесным оборудованием сельскохозяйственного, строительного или промышленного назначения (например, буровым оборудованием) в зависимости от выполняемых задач.
2. Классификация:
По назначению:
Общего назначения - используемые для выполнения работ в растениеводстве, за исключением возделывания пропашных культур;
Универсально-пропашные - используемые в растениеводстве и животноводстве, в том числе для возделывания и уборки пропашных культур;
Специальные - применяемые для возделывания отдельных сельскохозяйственных культур;
По типу движителей:
Колесные - передвигающиеся с помощью колесного движителя;
Гусеничные - передвигающиеся с помощью гусеничного движителя;
Полугусеничные - в которых используются колесные и гусеничные движители одновременно;
По типу остова:
Рамные - остов состоит из клепаной или сварной рамы;
Полурамные - остов образуется корпусом трансмиссии и двумя продольными балками (лонжеронами), привернутыми или приваренными к корпусу;
Безрамные - остов образуется в результате соединения корпусов отдельных механизмов;
3. Основные части:
Трактор имеет сложное устройство. Он состоит из двигателя, силовой передачи, ходовой части и рабочего оборудования. Двигатель (1) создает крутящий момент, который передается силовой передаче трактора. Силовая передача предназначеня для того, чтобы подвести крутящий момент двигателя к ведущим колесам или гусеницам трактора. Она состоит из муфты сцепления (2), коробки передач (3) и механизмов заднего моста: 4 и 5 гусеничного трактора или 4,8,10 – колесного. У некоторых тракторов между муфтой сцепления и коробкой передач ставится увеличитель крутящего момента. Посредством ходовой части 9 или 11 и 12 трактор опирается на грунт и движется. К рабочему оборудованию относится гидравлическая навесная система, вол отбора мощности, приводной шкив и прицепное устройство 6.
Основные части трактора: а – гусеничный трактор, б – колесный, в – самоходное шасси, 1 –двигатель,2-муфта сцепления,3-коробка передач,4-промежуточная (главная) передача, 5-муфта поворота, 6- прицепное устройство, 7- навесное устройство гидросистемы, 8 – конечные передачи, 9 –гусеница, 10-дифференциал, 11-направляющее колесо, 12-ведущее колесо.
Для управления трактороми его механизмами служат органы управления. контрольные приборы помогают вести наблюдение за работой механизмов трактора. Современные тракторы имеют кабину, электрическое оборудование и некоторые дополнительные устройства.
4. Силовая установка
Силовая установка гусеничного трактора содержит двигатель 1, муфту сцепления 2, насосную станцию 3, гидромоторы 4, бортовые редукторы 5, основные корпусы которых с помощью промежуточных корпусов 6 прикреплены к раме 7 трактора.
Двигатель
(или силовая установка) является
источником механической энергии,
необходимой для передвижения автомобиля
или трактора. На автомобилях и тракторах
всех видов наибольшее распространение
получили двигатели внутреннего сгорания.
Пнемоколесные тягачи.
Пневмоколесные тягачи предназначены для работы с различными видами сменного навесного и прицепного строительного оборудования. В сравнении с гусеничными тракторами они более просты по конструкции, имеют меньшую массу, большую долговечность, дешевле в изготовлении и в эксплуатации. Большие скорости тягачей (до 50 км/ч), хорошая маневренность в значительной мере способствуют повышению производительности агре-гатированных с ними строительных машин.
Различают одноосные и двухосные тягачи. На обоих типах тягачей применяют дизели и два вида трансмиссий — механическую и гидромеханическую. Наиболее распространены тягачи с гидромеханической трансмиссией.
Одноосный пневмоколесный тягач состоит из двигателя, трансмиссии и двух ведущих колес. Самостоятельно передвигаться или стоять на двух колесах без полуприцепного рабочего оборудования одноосный тягач не может. В сочетании с полуприцепным рабочим оборудованием такой тягач составляет самоходную строительную машину с передней ведущей осью.
Оба ведущих колеса тягача являются одновременно и управляемыми. Управление сцепом тягач-полуприцеп осуществляет путем поворота тягача на 90° вправо — влево относительно полуприцепа с помощью гидроцилиндров двустороннего действия.
Двухосные тягачи в отличие от одноосных имеют возможность самостоятельно перемещаться без прицепа, работать в агрегате с двухосными прицепами при незначительных затратах времени на их смену. Двухосные четырехколесные тягачи имеют один или два ведущих моста и шарнирно-сочлененную раму. Система поворота полурам такая же, как и у пневмоколесного трактора (см. рис. 2.5, в). Гидромеханическая трансмиссия одноосных и двухосных тягачей включает раздаточную коробку, от которой основной крутящий момент через гидротрансформатор, коробку передач и соединительные валы сообщается ведущему мосту (или двум мостам). Часть мощности, отдаваемой двигателем через раздаточную коробку и карданный вал, может передаваться к исполнительным органам управления рабочим оборудованием. Все агрегаты привода, отбора мощности и трансмиссии ходовой части тягачей унифицированы и могут быть использованы для различных модификаций машин той же или смежной мощности. Мощность дизеля тягачей составляет до 1200 л. с. (880 кВт).
В конструкциях двухосных тягачей большой мощности (свыше 400 кВт) применяют электромеханические трансмиссии с мотор-колесами. На рис. 2.6, а показан такой тягач на четырех мотор-колесах. Мотор-колесо (рис. 2.6,б) состоит из электродвигателя, корпус которого является несущим элементом (осью) для обода ведущего колеса с бескамерной шиной, и планетарного зубчатого редуктора, передающего вращение от вала ротора электродвигателя ободу колеса. Стояночный тормоз 3 мотор-колеса, смонтированный на валу электродвигателя, автоматически включается при обесточивании обмоток электродвигателя. Корпус электродвигателя подвешен к несущей раме тягача на двух шарнирах, чем обеспечивается поворот мотор-колеса в плане относительно продольной оси машины вправо и влево. Таким образом, каждое колесо тягача является одновременно ведущим и управляемым, что определяет высокую маневренность и проходимость машины.
Рис. 2.6. Двухосный тягач с электромеханической трансмиссией: а — общий вид; б — мотор-колесо
Рис. 2.7. Различные виды сменного оборудования одноосных и двухосных тягачей: 1 — скрепер; 2— землевозная тележка; 3 — кран; 4— цистерна для цемента или жидкостей; 5 —трайлер; 6 — кран-трубоукладчик; 7 — траншеекопатель; 8 — корчеватель; 9 — бульдозер; 10 — рыхлитель; 11 — погрузчик
